
根据需要可通过布帘划分空间,极氪中心展厅设计通过家具的调整完成从休闲到论坛活动模式的转变。
The space can be sectioned off by a cloth curtain as required, allowing for smooth transitions between casual and more formal settings through furniture adjustments.



The metal maple tree installation is inspired by local tradition of visiting Mount Yuelu to admire the autumnal foliage.
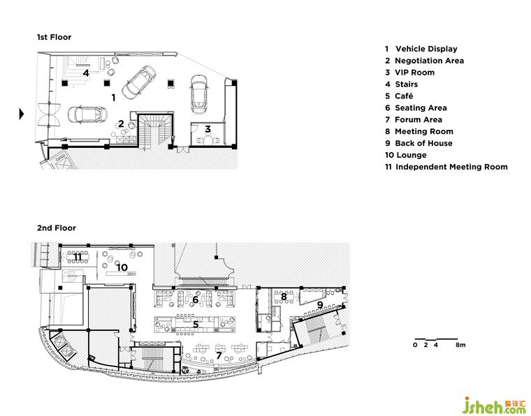
平面图,Plan
更多极氪中心展厅设计请关注聚设汇装修平台: