植物掩映下的自助柜台
The self-service counter through the plants.
洞见苏州慢,邂逅7分甜。当年轻人坐在空间中的传统窗花前啜饮,苏州餐厅设计在场景连接的时空中体会到园林之美,正是MOC对传统文化在时代语境下的又一次探索。
Enjoying the slow Suzhou and tasting SWEET 7. When young people are sipping tea and sitting in front of the traditional window, they experience the beauty of the garden back in time and space, which is another exploration of traditional culture by MOC in the context of the times.

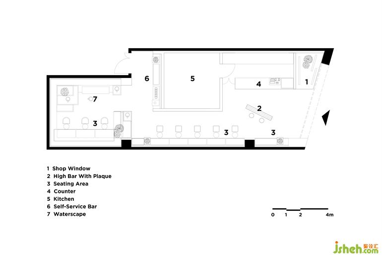
平面图,Floorplan
更多苏州餐厅设计请关注聚设汇装修平台: