07/
抗衡与融合
Collision and Integration
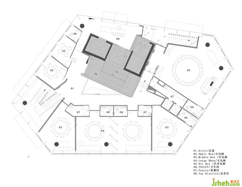
吴是艾克建筑设计团队在用西方的设计秩序来建树东方的空间情绪与哲学。深圳餐厅设计曲径通幽,以小见大,张扬且含蓄,一场东西方美学哲学碰撞。
This project exploits Western design order to create a space that expresses Oriental sentiments and philosophy. With a winding circulation, thoughtful details, as well as high-profile and restraining expressions, it shows the fusion of Eastern and Western aesthetics.

















更多深圳餐厅设计请关注聚设汇装修平台: