#07
软性空间体验
Soft spatial experience
在空间的材料与色彩系统上,设计强调舒适性与柔美性的女性元素,大面积的艺术漆搭配地毯,营造高级质感。
For material and color selection, the design adopts feminine elementsfeaturing comfort and softness.Large areas of artistic paint combined with the carpet reveals tactile, qualitytextures.


#08
唯一性的尊贵体验
Exclusive and noble experience
店铺设计从空间的中心区可以看到采用预约制的门店VIP接待室,该空间针对VIP客户开放,配置独立的服装有别于其他试衣间,同时配置咖啡水果与一对一的导购服务,展现私密尊贵的购物体验。
Next to the central area is the VIP reception room with a reservation system. Open to VIP customers,this area displays separately-selected garments and has an independent fitting room. Coffee, fruit and one-on-one shopping service are offered exclusively forVIPcustomers to enjoy a private and noble shopping experience.

#09
打破次元,联通线上
Combination of online and offline retail
为门店配备链接线上直播的空间已成为零售门店的全新标准之一。在项目设计中,考虑直播过程的声音干扰与镜头以外备货场景的无序,设计师将直播区设置在空间的最底端与仓库相邻,在方便线上展示之余也方便备货发货,有效的与销售区进行分隔,让线上线下都展示着品牌最美好的状态。
Incorporating a live streamingarea has become one of the new standards for retail stores. In light of the noise caused by live streaming activities and the disorder by preparation outside the camera, the design team separated the live streamingareafrom the sales area by locating it next to the storage room at the innermost end of the space. It is convenient for live streaming display without interfering with goods preparation and delivery, showing the best brand image and identity both online and offline.

项目落地后,TRONGYEE做为一个商场的新品牌,开业至今,连续蝉联汕头万象城的当店销量冠军。AD艾克建筑在探索未来城市商业空间可持续的价值过程中,设计从商业价值思考到实践,与品牌通力合作,最终构建了衍生品牌内核的商业空间。
After the project is completed, TRONGYEE, as a new brandentering The Mixc, Shantou, hasbeen the sales champion of theshopping mall since the new store's opening. The project is an exploration of sustainable value for future urban commercial spaces. AD ARCHITECTURE conceived the design solution by taking commercial value and practice as thebasis, and eventually, through cooperation with the client, created a commercial space that is derived from the core of the brand TRONGYEE.
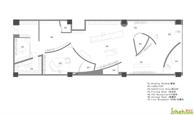
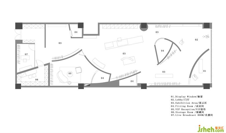
△平面图 Floor plan
更多店铺设计请关注聚设汇装修平台: