女主人是一名钢琴老师
我们把琴房原本封闭的实墙打掉
让空间视线最大限度释放
客餐厅与琴房的空间关系瞬间颠覆性转变
可以想象某个周末
女主人在练琴
小孩子在客厅玩积木
男主人从厨房端着热腾腾的菜出来
一家三口共进午餐的场景
是多么和谐与美好

黑钢框架勾勒出干净利落的线条
通透的材质模糊的空间的界限
开敞灵活的布局使原本狭长拥挤的过道空间得以释放
随之而来是引入室内的自然光景


通过区域划分的家居设计手法
打破狭长的卧室格局
靠窗部分结合飘窗造型做成梳妆加书台一体的桌子
在满足基本功能需求的同时
增添了必要的储物功能
不同材质的转换延续
赋予空间明亮轻盈的生活格调

材质造型之间的起承转合
让空间有了干净利落的视觉效果
适当的留白
给予居住者更多发挥创作的空间
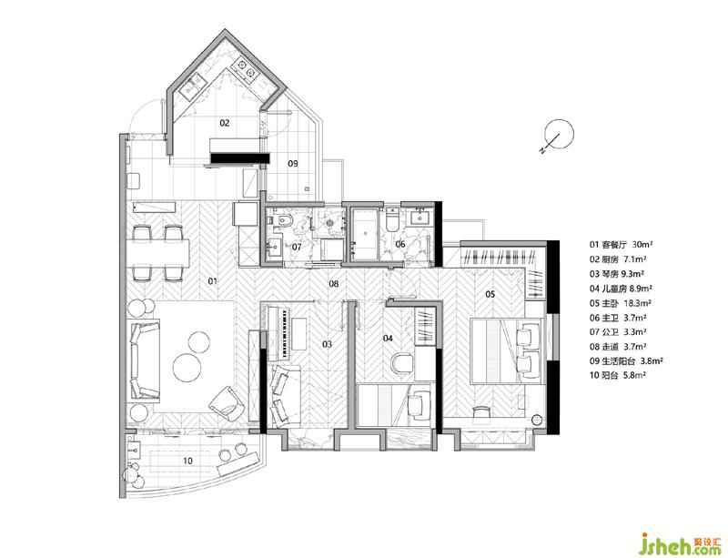
平面图
更多家居设计请关注