坐标:广州力迅西关雅筑住宅设计
面积:100㎡
户型:三室
花费:60w
项目面积:100平
项目设计费:300*100=3万
基础施工(含人工、吊顶、辅材):12万
主材(瓷砖、门窗、卫浴等主材):10万
定制/木作(定制的衣柜、橱柜等):14 万
家具软装(成品家具、窗帘布艺、装饰品):10 万
设备(中央空调、新风、地暖、暖气片、水系统):5万
家电(含厨电、壁挂空调等家用电器):5万
其他:1万
说在前面
本案位于广州,一人居,业主希望打造一个充满质感的家,所以我们以暗黑系风格为基调,展现出与众不同的生活品味。暗黑系也是酷炫、个性、真实的代表,设计上没有浓烈的色彩分割,凭借低饱和度的灰调赋予空间一种神秘感,利用木质地板、布艺沙发、石材等各种材质相互搭配,不仅保持了空间层次分明的视觉感,更是将高级简约的气质发挥得淋漓尽致,让人产生探索的欲望。
想起拍摄当天有人问这是什么风格?
我们一时楞神不知怎么回答一个准确的答案…现代、包豪斯、复古…
一个摄影师的家,精致、个性、富有腔调;石材、玻璃、不锈钢都是他的钟爱…
最后我们在这里做了一个幻想独居的梦…
选择暗黑系装修,就是选择一种与众不同的生活方式,让家成为独一无二的存在。
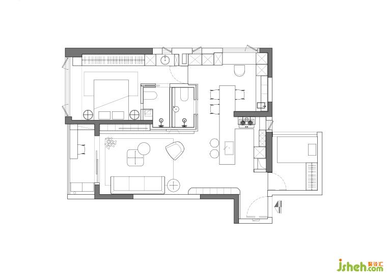
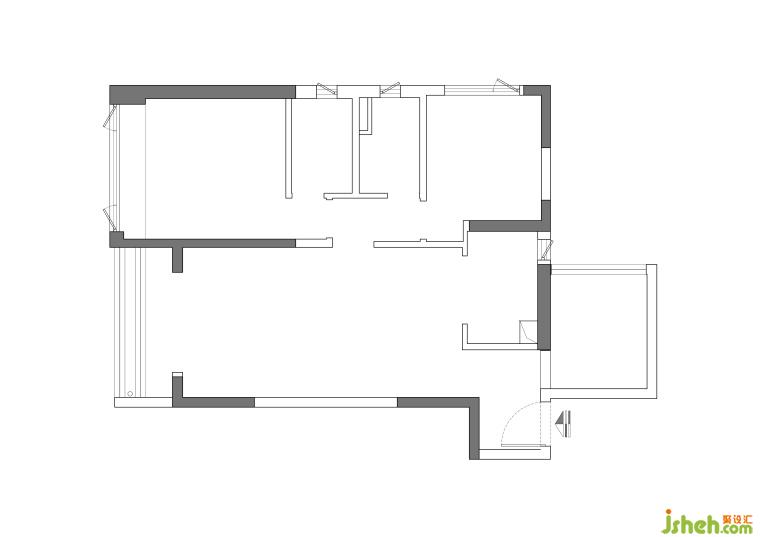
原始户型图
业主需求:
1. 希望家是有个性的,自由的
2. 注重收纳;
3. 需要休闲区,接受开放式的空间。
4. 朋友比较多,希望有招待朋友们的地方。
平面方案图
根据业主的实际需求,优化空间布局,设计亮点如下:
1. 我们把生活空间的自由度提升,重新梳理分配,将原厨房门拆除,设置岛台+开放式厨房;
2. 客厅背景墙采用三种材质组合设计,调性十足;
3. 保留原阳台推拉门,把阳台打造成独立休闲放松空间;
4. 增加了中西厨功能区+长岛台,打造独立书桌区和酒吧区;
5. 更改主卧进门方向,改变原卫生间位置,一卫变两卫;
玄关
暗黑,是颜色,是情绪,是态度的表达
推开门,走进来的这个家,酷炫、摩登、个性但又不乏温馨细腻,每一个角落仿佛都充满了故事……
餐厅
“无餐桌·吧台模式”
广州住宅设计餐台与大理石岛台连接在一起,形成空间功能的共融,一高一低穿插错落的台面设计,为就餐区域增加空间层次感。
一体化的餐客厅由不同深浅的黑堆砌而成,体块的结构和色彩的轻重让空间区域灵巧的划分,让浓郁的个性一览无余、不断突破、递进。

黑色悬浮柜的设计简洁而富有层次感,不锈钢穿插其中,形成了强烈的视觉对比,使得整个玄关显得干净利落。
灯带巧妙地隐藏在柜底,不仅提供了充足的照明,还营造出一种悬浮的视觉效果,增加了空间的层次感和立体感,为玄关增添了一份独特的魅力。
厨房
借助开放式的设计,感受空间的自由与空旷,虽是以“暗黑”为主题却没有丝毫压抑之感,石材与木质,刚柔并济,夹杂光线的变化给空间足够惊喜,让空间得到了极致升华的生活体验感。