坐标:观山嘉苑
面积:135㎡
户型:三室
花费:68w
项目设计费:135平, 500*135=67500万
基础施工(含人工、吊顶、辅材): 20万
主材(瓷砖、门窗、卫浴等主材): 18.9万
定制/木作(定制的衣柜、橱柜等): 34万
家具软装(成品家具、窗帘布艺、装饰品):11.5万
设备(中央空调、新风、地暖、暖气片、水系统): 6.8万
家电(含厨电、壁挂空调等家用电器): 10万
其他:
说在前面
本案位于深圳罗湖区,业主一家三口居住,需要一间音乐房,整体风格偏向法式,有一定的收纳空间,结合业主的喜好我们重新整改空间,从优化空间设计到最终的落地;在和zoe相处的一年多时间里,感受到她对生活最大的热爱,让我们展开了一场对生活共性的思考和个性化需求的探索之旅,去帮助她实现心之所属的住宅空间。
我感觉这不仅仅是一个住宅,更是一种生活理念的诠释,将艺术、环境和充满烟火气的生活完美融合。
我们始终觉得,“家” 一定是自带主人特性的,业主从全世界各地搜罗回来的摆件、挂画、拉手、五金,我们通过重组整合,让空间呈现独特的艺术腔调,在这个空间里,做一场晨昏时分的白日梦。
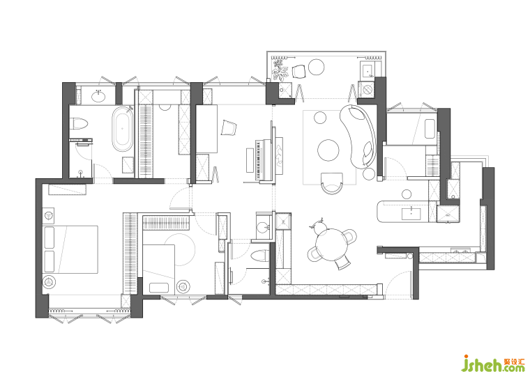
原始户型图
业主需求:
1. 需要一间独立音乐房;
2. 注重收纳;
3. 注重家居的美感,希望家居有归属感;
4. 需要休闲区和独立衣帽间。
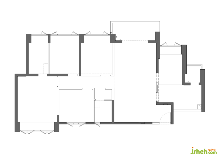
平面方案图
根据业主的实际需求,优化空间布局,设计亮点如下:
1. 我们把生活空间的自由度提升,重新梳理分配,将原厨房门拆除,岛台+开放式厨房,中西合并;
2. 保留原阳台推拉门,把阳台打造成独立休闲放松空间;
3. 增加了中西厨功能区+岛台,可以做为品茶区、休闲简餐区;
4. 设计独立音乐房,与客厅形成洄游型动线;
5. 主卫墙体内推,扩大主卫空间,并打造独立衣帽间,提升业主居住舒适度。
玄关
光影作序
复古生活
看到她家的第一眼,感觉一切都“刚刚好”,踏入这个空间,复古怀旧的气息让时间放慢了脚步,微醺着自然静谧的氛围。
当视线回转,不同的物件随着不同的家居场景弥漫伸展,让静态的空间更有生命力,在居所内绽放独属于自己的魅力。
餐厅
移步异景
Step by Step Scenery
━
在行走的空间中转换,亦有移步换景的心情。由靠近玄关处移至与餐边柜并排一体,承揽入户开阔感与就餐仪式感。
餐厅一偶。
餐厅里,浅色柜体搭配黑色餐桌,在灯光的晕染下展现迷人魅力,带有复古图案和纹理的拼花地板,也为餐厅增添一份复古的韵味,烛光摇曳,丝丝缕缕地渗透进餐厅的每一处。
厨房

以组合式功能满足生活所需,确立灵活宽敞的动线与精致和谐的视觉图景,优雅的弧线,也为厨房增添了一抹灵动与浪漫,万家灯火远不及小家三餐四季,看似平淡,却也欢喜。