⊠ 项目地址 / 深圳 南山首地容御豪宅设计
Address / nanshan shenzhen
◫ 项目面积 / 89㎡
Project area / 89㎡
▣ 设计机构 / 时光筑造空间设计
Design Organization / SGZZ interior design
结合现代美学对空间进行重新划分,让区域得到最大利用化,一面居中的“C”位电视墙,结合洗漱台和洗衣区功能,深圳首地容御豪宅设计让书房、主卧、盥洗区与客厅完美联动,取消传统的隔断方式,深圳首地容御豪宅设计统一选用推拉隐形门遮挡隐私,开关之间自成一派,带来灵动多变的布局模式。
—
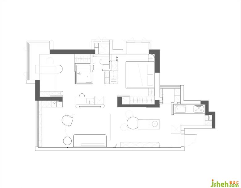
户型解析
Design analysis
这套作品的灵感来源于对复古&混搭的理解,业主喜欢深色系空间,夫妻的二人世界,希望整体布局是全开放的设计,复古和现代这两种看似矛盾的风格,在这个家中被巧妙融合,通透空间、沉稳配色打造现代感十足的居室氛围。
#1、原户型空间划分不明确;
#2、超大的衣物收纳空间,能藏起来最好;
#3、洗手间是三分离,且很想尝试日式的整体浴室;
#4、主卧、次卧可以打通形成一个整体大套间;
#5、有两人独立办公的区域。
—
平面方案
House type structure

/改造亮点/
➊电视墙与洗漱台一体化设计,成为空间“C位”,超大洄游动线串联起各个空间,形成全开放式联动布局;
➋空间动线连贯,主卧、书房、卫生间三者独立且融合,空间分布合理且高效;
➌阳台打通连入室内,靠窗设计整排落地书柜;
❹ 深圳首地容御豪宅设计弧形墙面造型、微水泥、线性灯光,呈现质感十足美家;
❺ 一房多用,隐藏折叠窗+收纳柜,既是书房也是次卧。
01.
AISLE
仪式感 落尘
弧形线条柔缓隔出下沉式玄关,水磨石地砖丰富空间质感,穿衣镜顶天立地,深圳首地容御豪宅设计保持墙面完整度,镜面对称关系从视觉上拉伸空间,减少入户区的狭小逼仄感。
弧形线条柔缓隔出下沉式玄关,水磨石地砖丰富空间质感,穿衣镜顶天立地,保持墙面完整度,镜面对称关系从视觉上拉伸空间,深圳首地容御豪宅设计减少入户区的狭小逼仄感。
墙面安装小巧置物架,艺术造型收纳盘营造精致归家氛围,钥匙、首饰等细碎物品,有了精美的“小家”,卸下束缚,投奔家的怀抱。
02.
A LIVING ROOM
质感 连贯性
复古&混搭的态度,结合现代主义的高度理性,微水泥+木材的手法让家呈现有质感的电影氛围,去繁就简,深圳首地容御豪宅设计让空间开放连贯,带来的是延伸而开的空间感与深邃的质感。
造型硬挺、座包宽大的黑色皮质沙发,给人深陷其中的云端舒适坐感,与浅灰麻色的地毯、圆几,形成灰色调的层次渐变与叠加,看似简约的搭配,每一处视点却细微知著。

墙面泛起“涟漪”,是对客餐厅巧妙的分界,开阔的空间层次分明。深圳首地容御豪宅设计本案的灯光设计也是一大亮点,迸发的氛围光释放出了无尽的温暖气韵,在空间里肆意流动。