项目名称 | 东湖九区·陈宅
项目地址 | 广东惠州
设计公司 | 向乐设计
设计主创 | 陈日耿、屈真真、徐淑怡
项目面积 | 120㎡
物料主材 | 瓷砖、多层实木地板、乳胶漆、爵士白大理石、烤漆板
项目造价 | 约38万
项目摄影 | 木杉视觉
保持居家简约的状态,背后的收纳系统必须强大。大众往往有一个误区,惠州装修设计认为设置一个储物间就解决所有问题。实则不是,收纳应该是“分散式”、“就近式”,因人们总习惯于用最便捷的方式达到某一目的。玄关、餐厨、客厅、卧室、卫生间、阳台,我们对每一个空间类别进行研究,相应设置了收纳储物空间。房子就像一个容器,家中每个成员有自己的物品,日积月累,随着年龄的增长物品必须更换添加。这样想想,收纳的设计规划是多么重要!

整体以黑白灰为基调,黄色和浅蓝色作为辅助跳色来调节整体色彩关系,突显现代时尚的空间氛围。
惠州装修设计师通过空间的处理手法,巧妙地解决了卫生间门直对客厅的尴尬,及两个次卧的私密性问题。设计的价值在于解决空间问题,而设计师就像空间的“医生”。

利用入户门背面的墙厚作为收纳空间,储放不常用的鞋靴,齐平大门并且不会对厨房造成视觉的影响,一举两得。厨房用米黄色烤漆面板搭配灰色台面,与整体风格和谐统一。
公卫因飘窗结构不可动,同时设计师希望业主洗漱时可以面向窗户,拥有宽阔的视野,在早晨阳光的沐浴下唤醒身体,洗手台用“咬合”的构建方式,镜子固定于天花,增加空间的通透感,大大地提升了体验感和舒适度。

△主卧局部
业主不希望主卧的整体色调过于沉重,能与客餐厅有所区别。惠州装修设计最终选用浅灰蓝色做基调,搭配深褐色床架和窗帘,加上橡木色地板,吊灯、床品和床背景灰蓝色交相呼应,整体淡雅清新。
对于大多数年轻的购房者,拥有自己的房子实属不易,怎样充分地利用好每一寸空间,发挥出房子的最高价值,是我们一直追逐的目标!
业主有一个十多个月的小男孩,惠州装修设计师希望创造一个非常舒适的空间,满足儿童成长中不断增长的好奇心和探索欲。而房间的布置随着孩子的成长必须更新,因此设计师采用成品软装的方式来布置空间,灵活性、可变性高。好的设计是贴心的,不是过度炫技。

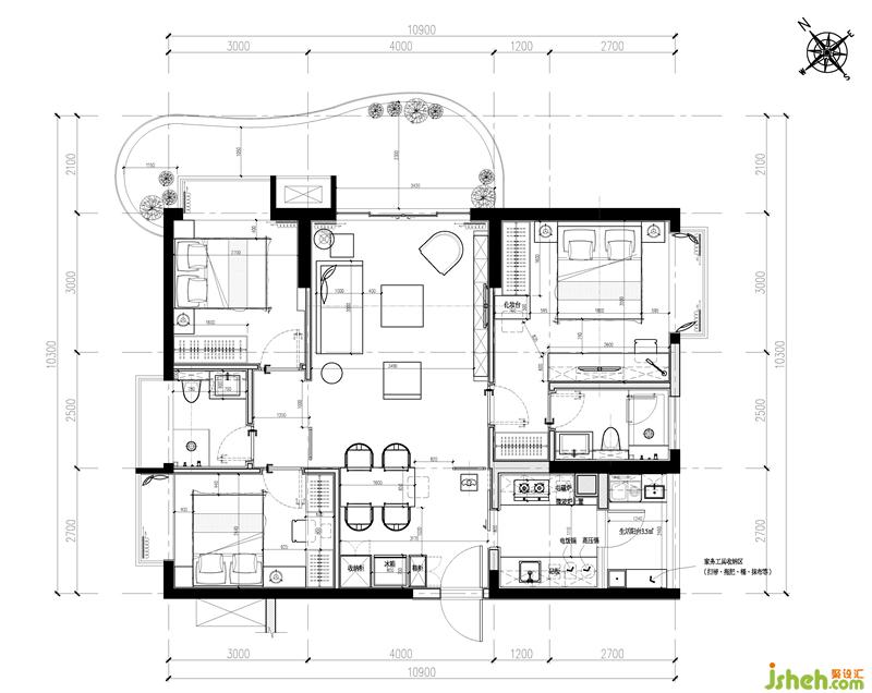
▽平面图
▽收纳分析
更多惠州装修设计请关注