About Room
房屋信息
地址|Address:深圳御景东方
风格|Style:现代美式
面积|Area:160㎡
硬装设计|Hardcover Design:方界设计
软装设计|Flexible Design:方界设计
写在前面 | In the front
精致简约的质感、巧妙的结合了材质、纹理的住宅设计,体现了设计师独特的设计语言。经典的白,点缀的蓝,恰到好处的升华了空间的格调,越简单,越生活。
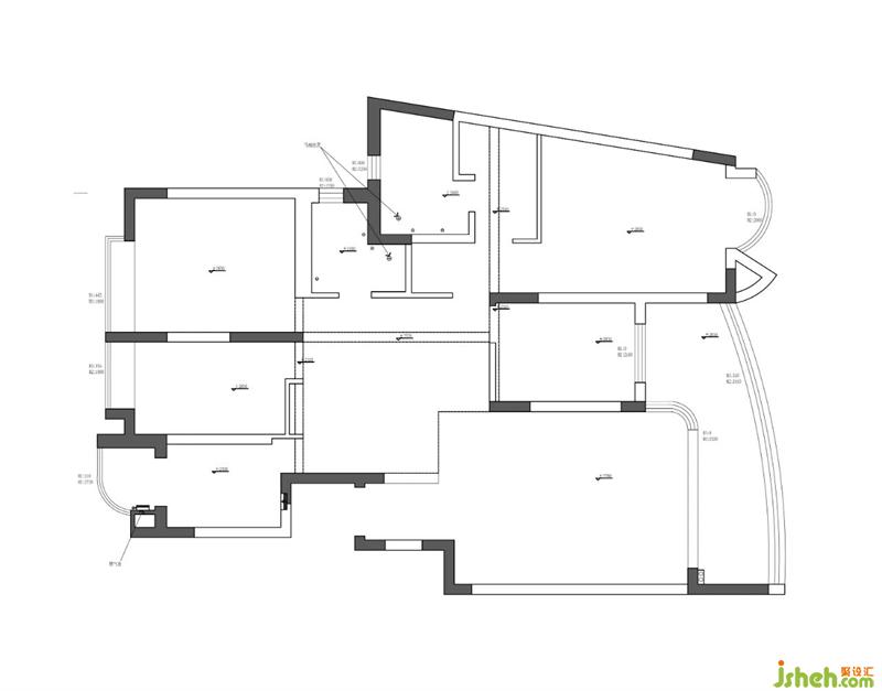
1.根据业主需求,需要一个开放式厨房,所以打掉一个次卧室,纳入到厨房空间;
2.把原来的厨房阳台砌一个墙垛,做生活阳台,放洗衣机/烘干机/拖把池;
3.次卫做大,把原先靠近主卧的墙垛拆除,往主卧空间推重新砌墙,把次卧和次卫的墙拆除砌薄,释放次卫空间;
4.主卧床头背景墙,用夹板拉平,批灰,让整体空间更加美观;
5.拆除原先衣帽间隔墙,用柜子来隔开主卧和衣帽间;
6.主卫门拉平;
7.大门,内开改外开;
门厅进来的玄关处,采用了大面积的白色,白色收纳柜与客厅座椅搭配灯光,给人舒适温馨的首个印象。原户型的大门是内开的,设计后做了外开门,把空间让给了玄关的设计,突出了整个设计风格。
客厅 | Living Room
客厅是宽敞大方的格调,依旧是白色的主色,点缀蓝色的窗帘和沙发。作为重要的交流和会客空间,在功能和美学上都达到了统一。纳入自然光线的大面积玻璃窗,让光线在空间中肆意流淌,时间缓步前行。
客厅空间处理上,设计师找到了最合适的比例关系,运用各种材质进行穿插重组,通过序列的设计语言,让整个客厅空间主次分明,增强了空间节奏感的体验。

柔软的沙发,坚硬的茶几的布置,构成了客厅大气通透的风格。

相比主流,设计师更在意主人的生活方式,在一个安静的氛围内。
餐厨是一体式的,简单大气的餐厅,干净明朗的厨房,观赏性十足的壁画,吸睛的吊灯,都是餐厅有趣的软装。
室内设计的每一个细节都彰显了美式的浪漫与优雅。岩板吧台,金属质感且设计感十足的玄关柜,木质的桌椅,都是设计师精心的搭配。
