About Room
房屋信息
地址|Address:深圳御景东方
风格|Style:现代轻奢
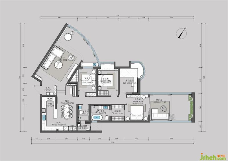
面积|Area:184㎡
硬装设计|Hardcover Design:方界设计
软装设计|Flexible Design:方界设计
写在前面 | In the front
现代低调奢华风格注重硬装修手法的简洁,但也并不像一般的简约风格那样随意。看似简洁朴素的外表之下却常常折射出一种隐藏的高贵气质。舒适、通透、合理的使用空间,让整个空间透着一种静怡、宁和、雅致之美。
1.入门玄关正对面做了通高鞋柜,柜门延伸了木材质作为饰面,挡住入门就看到楼梯。
2.将客厅与阳台互通,加大客厅的通透性。
3.把餐厅和厨房打开,增加吧台功能,加大空间的互动性。
4.利用主卧的中空阳台,改造成休闲阳台给业主冥想空间。
5.过道巧用父母房空间,增加了隐形储物柜功能。
6.主卧增加衣帽间功能。
入门玄关的鞋柜和白墙简洁大方,墙上的挂画与线性灯搭配出艺术气息。鞋柜刚好挡住入门正对的楼梯和走廊,保护隐私提高隐秘。看似不起眼的细节却悄悄铺陈好出门与回家换鞋的便利性,一眼望去给人质感高级感受。
客厅 | Living Room
沙发背景墙用了矩形拼接,拼接处嵌入金属线条,减弱大面积的空墙给的安全缺失感,利用拼接营造凝聚也提升时尚


电视背景墙定制了一面的格栅墙雅致别韵,挂壁的电视柜用雅白石材和不锈钢金属相退互碰撞,让整个空间都有个衔接。

装修设计摒弃了传统意义上的奢华,生活不止于当下,轻奢生活精致到老。
通透的空间布局使厨房与客餐厅连为一体,一家在这里享受美食让一日三餐也变得越发可口。
优雅态度,低调,舒适,却无损高贵与雅致。

厨房位置做了很多开放格,每个板下方都安置灯带。灯带给光线不足的地方带来光明。不规则的黑色开放格归类不同大小的物品,每个空间都发挥自己最大的作用。
原厨房采光非常差,在改造为开放式厨房后,解决了采光以及空间利用率的问题,大大增加空间趣味性,互动性。