地址|Address:深圳宝创红禧公馆
面积|Area:58㎡
风格|Style:工业风
设计|Design:方界设计
「关于屋主」
繁华都市,佼佼者就在其中。业主两人都是90后的年轻人,运动和游戏是现在年轻人的常态。个性、时尚、出色是现代年轻人的标签。富有静谧神秘的工业风,公寓设计保留原始造型干净利落,去除多余的隔屏,无区域划分的空间会使空间视觉更开阔是业主心仪的设计。工业风在于创意,生活的巧思,素朴的质感,信手拈来的生活趣味。
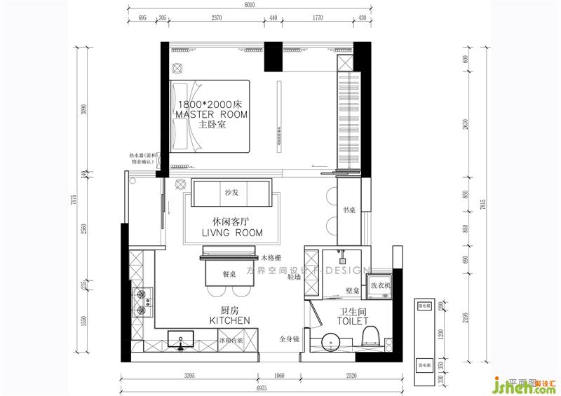
平面结构布置:
1、封闭式的厨房拆除了墙面,做成了开放式的厨房;
2、玄关还是在原来的位置增加了进门能随手放置东西的凹台;
3、卫生间腾出了一面鞋墙满足业主们鞋子的收纳;
4、电视背景墙用了木格栅电视背面就可以放张餐桌,也小小分隔化区域;
5、利用通往空调外机的通道晒衣服,刚好对着风口满足晒衣服的功能;
6、卧室和卫生间之间刚好有个卡槽面积可以运用成书桌;
7、拆除了主卧和次卧的墙,增大空间加了一面墙的衣物收纳;



漂泊他乡多少年轻人不怀旧,窗帘与光线倒映出的光影
灰色地板与原木元素映射生活的场景


娱乐游戏、居家办公都是生活的调味品,一米七的长度足够业主肆意发挥。
铁质的桌椅搭配原木的桌面和椅面,完整地展现木纹的深浅与纹路变化很有质感故事化。

深灰和浅灰色搭配高级有质感,干净利落很符合现代年轻人的个性。