项目地址:万科第五园
项目地点:深圳
项目面积:83平米
设计公司:深圳市嘉合缘设计师事务所有限公司
设计风格:现代
主创设计:肖丽
项目摄影:于翔
主要材料:KD饰面板,木纹砖,岩板,极简门,生态墙面漆...
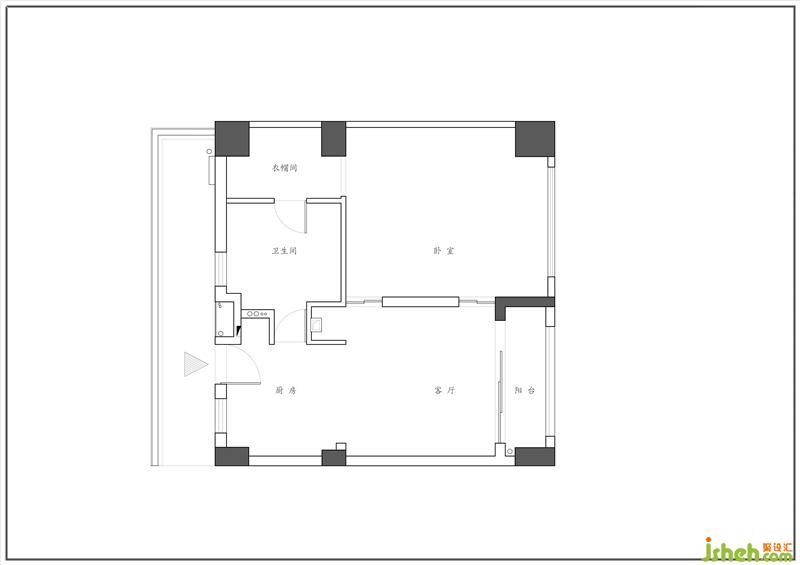
▲原始平面图
户型问题:
1、一房一厅的空间规划不够合理;
2、卧室面积过大,实用性不强;
3、卫生间门口直接对着厨房,稍显尴尬;
4、客厅与卧室之间有大片空间浪费,空间利用率低。
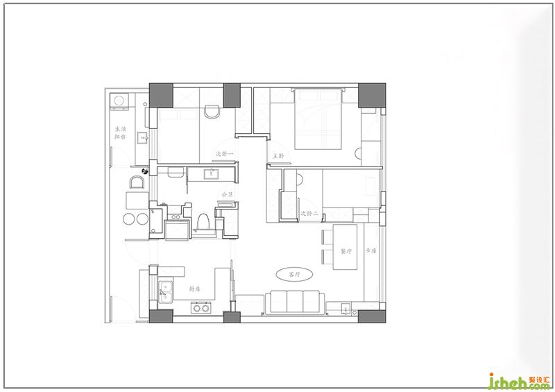
▲平面布置图
解决方案:
1、将主卧隔开,分成三个房间,提高空间实用性;
2、在主卧、次卧与卫生间三处划出过道区域,使得各处空间有了更多的私密性;
3、改变卫生间的开门方向,避免与厨房直接对着开门;
4、将户外的走廊改造成生活阳台以及小小的茶室,充分利用空间;
5、去掉室内的阳台,做成卡座式餐厅,变成主人生活娱乐的小天地。
当你仰望生活,便有生机;
目之所见,皆希望。
-客厅-
灰色与木色组成了客厅的主要色调。灰色低调、洁雅,木色自然、亲切。两者相得益彰,构成一幅协调温馨的画面。
木桌木椅,绿色植物,还有填满柜子的书籍物件等等,文艺又充满情调,让家多了几份烟火气,而不至于太空虚冷落。
这里原本是阳台,经过一番改造,便成了卡座式的餐厅,也是主人接待客人,办公、冥想和发呆的好地方。坐于此间便能一眼望穿客厅空间的全部,犹如将生活尽收眼前,给人说不出的满足感和安全感。
一盏茶一只猫,闲来无事约三五朋友来喝喝茶,聊聊天,逗逗猫,抚抚琴。想来,千百年前的王羲之约朋友于山林竹石之间,深圳室内设计师潺潺流水之处饮酒作诗也不过就是眼前的这种平平凡凡再简单不过,但是又充满着诗意与浪漫的生活方式了。
客厅没有主灯光,而是以隐藏在各处的气氛灯作为光源。冬天的时候调出暖色温馨的灯光,犹如刚下过雨的天,光风霁月。夏天的时候,调出冷调白炽光,清新舒适。
客厅一隅,有柜有猫有小小的摆件,都是生活的小情调小装饰小惊喜,让人倍感安心。不管在外面遇到任何风浪,回到家以后都能获得平静。
-厨房-
入户便是厨房,与客厅相接。为了避免厨房油烟窜进客厅,所有便在在厨房与客厅之间加装上一道啡色自动门。做饭的时候,把门关上,避免油烟飘到客厅。平时便是打开的状态。
KD饰面板、木纹砖、岩板、极简门、生态墙面、暖光、皮革等等这些材料的肌理感和色调,可以营造出家的温馨,给人干净、舒适的体验。
-主卧-
卧室的格调温馨,陈设素雅。暖系灯光营造出生活的实在感,让睡眠的氛围格外的温馨,舒心。同时,我们可以看到卧室安装了很多隐藏式柜子深圳室内设计师,基本上是无处不在。一来可以满足主人的收纳需求,二来维持桌面的干净整洁,而不是堆满杂物的感觉,让猫也可以任意地上窜小跳,不至于被磕磕碰碰。今夜,适合做一场好梦。
