欢迎光临聚设汇,装修找设计就上聚设汇!
   咨询电话:15602987227
登录    注册
聚设汇
首页 > 家装 > 禅意之家

禅意之家

项目地址:新天国际名苑

项目地点:深圳

项目面积:170平米

设计公司:深圳市嘉合缘设计师事务所有限公司

设计风格:北欧

主创设计:肖丽 曾李娟

设计团队:邓小青  易梓晨  唐红霞

项目摄影:于翔

主要材料:烤漆饰面板,岩板,乳胶漆,多层实木地板,大理石纹瓷砖

业主简介:

业主一家人都是学佛信佛的有缘人。潜心向佛的他们,对居住环境的要求以净、雅、洁为主。

【禅意之家】佛渡有缘人 | 客厅变佛堂,是生活也是修行。

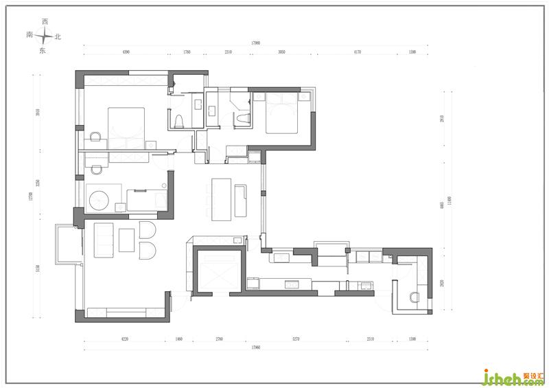
▲原始平面图

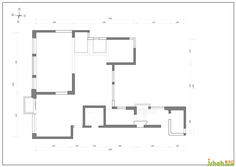
▲平面布置图

设计要点:

1、从业主的生活习惯出发,突破客厅的常规设计,去掉电视墙功能,深圳室内设计师把客厅空间打造成佛堂,同时也奠定整体的禅意意境的设计基调;

2、根据实际的住房需求,设计师将面积较大的主卧的一部分划分出来改造成孩子房;

3、去掉其中一间卫生间与主卧之间的墙体,将卫生间划入主卧内,变成主卫;

4、延长主卧与女孩房之间的墙体,改变主卧的开门位置,使得空间规划更加合理和实用;

5、用木墙柜隔开公卫与餐厅,在这两处空间之间增加一道门,避免卫生间的门对着餐厅而开的尴尬。

-入户-

入户处是一个大大的定制立顶鞋柜,为生活带来极大的便捷。牙白的色彩,奠定了空间整体的素雅恬静的格调氛围。

-客厅-

客厅的佛堂前面特意留了一片空白,窗外的风可以飘过,佛坛前的香也可以飘散,孩子们还可以在那里玩闹。让整体空间更加的宽阔明亮,不至逼仄深圳室内设计师。而大面积的白色家具装饰出家的静谧,洁净和简单。也反映了主人对生活的独特见解:人生就是不断在做减法,不奢求华丽无度,但求自然舒适,这便是生活最高级的享受了。

客厅的主角似乎总是沙发、茶几与电视机。但是如今电视机的使用率却是越来越低。当去掉了电视机的摆放顾虑,我们给客厅的设计带来了更多的可能性。

业主一家人对佛学颇有兴趣,尤其向往敦煌的艺术文化和藏传佛教的唐卡艺术。设计师根据主人的实际需要,直接将客厅打造成一个充满艺术感的,可以接待客人,亦可自己一家人在此或消遣或念经修佛的佛堂。

三杯两盏淡茶,五味杂陈人生。

一花一世界,一佛一如来。

-餐厅-

餐厅主要选材有烤漆饰面板,岩板,乳胶漆,多层实木地板,大理石纹瓷砖等。这些材料皆是,结实耐用,安全环保深圳室内设计师,可以让人住得更加的舒服安心。而左边增加灰色轻纱窗帘,迎风飘飘,与室内灰色主义呼应,空间便有了灵动的韵律美感。

餐厅的桌椅以原木打造,造型简约,不带任何装饰,给人知足常乐,无欲无求的禅意境界。

佛家说:前世的500次回眸才能换来今生的一次擦肩而过。今生有缘成为一家人,更要珍惜生活在一起的分分秒秒。在家的每一刹那,每一次不经意的瞥见,皆是暖兮。

餐厅设计成一半灰墙一半豆沙绿墙,层次分明,奢而有度。豆沙绿色呈现出舒缓、平静、不争不抢的心境,给空间平添几分质朴优雅的气质。

编织的木椅,古朴清雅;上面四个不同造型的吊灯,别有一番意趣。

深圳市嘉合缘室内设计师事务所有限公司

设计收费:600-1200 元/平             

擅长类型: 家装,豪宅,别墅,办公室

在线咨询

我的作品更多>>

扫描二维码关注我们的微信

深圳市聚设汇文化传媒有限公司
主编热线:15602987227
总部:深圳市罗湖区梨园路128号宝能汽车大楼416单元
佛山、东莞、成都、重庆、福州、厦门、南昌、武汉、
杭州、苏州、温州、郑州、长春、沈阳、贵阳、柳州、
哈尔滨、九江等城市设立办事处
© 2017-2021 Jsheh.com 版权所有 粤ICP备17079093号
展开
回到顶部