房屋信息|About room
地址|Address:深圳前海港湾花园
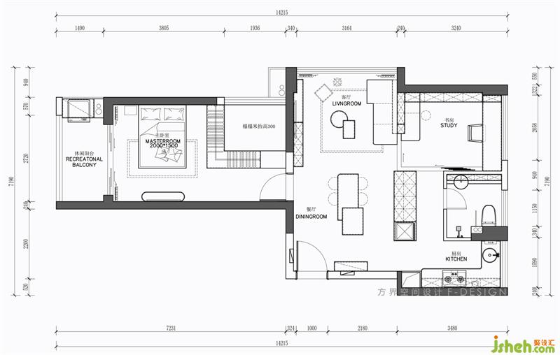
面积|Area:76㎡
风格|Style:简约现代
设计|Design:方界设计
「关于屋主」
生活平平淡淡,啜饮生活的酸甜苦辣不如自己给自己惊喜浪漫。简洁大方,色彩纯净, 大多以白色为主色调使用鲜艳的纯色为点缀。具有很浓的现代主义特色代表了一种时尚,反映出现代都市人进入新时代的某种取向与旋律。设计里选用了经典的白配红,素雅干净的白色清爽大方,热情而张扬的红色吸睛抢镜,这两者搭配到一起恰到好处。
根据户型合理布局:
1、入户右手边的厨房隔墙拆除做成了开放式厨房;
2、因为卫生间的门和卧室的门相对,就在原来的隔墙位置做了个收纳柜,面对后面走廊是收纳空间冰箱嵌入了收纳柜里,面对餐桌这边是酒柜。
3、次卧做成了两用的功能房,大型书桌满足业主玩电脑办公,靠墙做了收纳柜和一张隐形床家里来客人了可以放下来做成卧室。原来两边的围墙都切割掉换成玻璃推拉门,当玻璃门打开整体活动走线形成一个环圈;
4、主卧的门往外推出与电视背景墙齐平。原来的小书房容纳进卧室做成了榻榻米,既能收纳又可以小小歇息。因为卫生间很小放不下洗衣机就将卧室的阳台做成生活阳台。
在充满各种诱惑的世界里,用一份平淡克制欲望留下一份热情。客厅的色彩跳跃与留白,线条的曲与直,材质锐利与柔和。把红色运用到空间里面整个风格如平静里的躁动。
室外阳光明媚,屋内宁静清惬。沙发墙做成了一面实用的收纳柜与功能房一柜之隔。

生活没有那么多的规规矩矩,随意舒适且好。刚好可以把脚放到茶几下面加上轻巧的设计方便移动,可以席地而坐吃饭和玩游戏机,金属的材质也好清理。
生活的条例有序,不急不躁、理性的内心绽放着一股热情。整体线条分明,大面积的留白给空间多了更多想象的余地。
平淡中学会热情,借平淡的杯盏啜饮人生美酒。左边原来的墙做成了一面酒柜靠厨房门口,冰箱嵌入在顶天立地的收纳里面,柜门都是暗扣回弹的不需要柜把手;

两层开放式的凹槽到时候部分酒可以摆放在这里,里面装有灯带微微暖光照明营造酒柜的气氛。跳用红色,红配白经典的故事。

万家灯火、炊烟袅袅。开放式的L型布局厨房,增加制作美味时交流的快乐。刚好利用房梁的凹区嵌入,节省空间浪费和柔化房梁的存在感。


