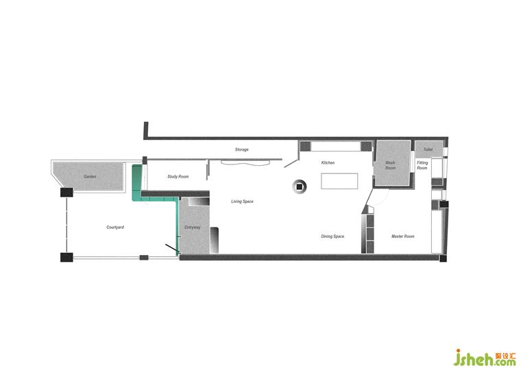
厨房 Kitchen
相对于客餐厅的留空处理,厨房机能相对完善,住宅设计以因应各种情境需求,不论是做为住宅、招待所亦或拍片场景,都能诠释空间的使用弹性。在此我们也做了大片留白,仅以锯齿状立体砖呈现变化,冰箱及家电设备采取嵌入式设定,红酒柜亦埋入中岛,以保有整体视觉的利落齐整。
In contrast to the open layout of the living and dining areas, the kitchen has been meticulously designed, taking account the comprehensive functionality to cater to diverse usage scenarios. Whether it's for residential purposes, serving as a guesthouse or functioning as a filming location, it can easily adjust to varying spatial requirements. In this area, we've incorporated substantial open spaces, incorporating three-dimensional tiles with a zigzag pattern to introduce visual dynamism. The kitchen appliances, including the refrigerator, have been seamlessly integrated and a concealed wine cooler has been discreetly placed within the kitchen island, ensuring a tidy and uncluttered overall appearance.
主卧Master Bedroom


因卫浴位置为固定不可移动,因此我们争取主卧空间向外推,并赋予大量收纳机能,定义空间量体,水平与垂直线条连贯对应,建立视觉秩序。另划设简易化妆台与小便间,供影片拍摄或休憩使用,平时门片为敞开式,整面木质语汇和公领域空间相互串连,隔而不分、界而未界。
Given the fixed position of the bathroom, we extended the master bedroom outward and integrated generous storage solutions. We carefully delineated spatial volumes, ensuring that horizontal and vertical lines work together harmoniously to establish a sense of visual organization. Furthermore, we designed a streamlined vanity area and a powder room, which can be used for video shoots or moments of relaxation. Typically, the doors are left open, facilitating a continuous connection between the entire wooden-themed area and the public spaces. This design approach blurs the distinction between separation and integration, creating a cohesive and inviting ambiance.
卫浴 Bathrooms

因应公私领域大面积的金质与木质调,业主希望局部区域能采用清浅石纹,于是我们在卫浴湿区及主卧厕所、小便间,都选用大理石纹呈现,住宅设计立面则铺以防水性能良好的晶石板材,同时属零醛添加的绿色材料,兼顾安全、环保与实惠效益。
In light of the prominent use of gold and wood tones in both the public and private spaces, the homeowner expressed a desire for specific areas to incorporate a bright and light stone pattern. Consequently, we selected marble patterns for the wet areas, including the bathrooms, master bedroom toilet and powder room. These surfaces were adorned with SPC wall panels known for their outstanding waterproof properties. Moreover, these materials are environmentally friendly, with no formaldehyde content, emphasizing safety, sustainability and cost-efficiency.

更多住宅设计请关注聚设汇装修平台: