欢迎光临聚设汇,装修找设计就上聚设汇!
   咨询电话:15602987227
登录    注册
聚设汇
首页 > 家装 > 67㎡小户型装修上演法式轻奢,大胆配色+黄铜家具尽显高级

67㎡小户型装修上演法式轻奢,大胆配色+黄铜家具尽显高级

坐标丨Position:北京上海建筑装修

设计团队丨Design Team:久栖设计

面积丨Area:67㎡

造价丨Cost:30万

风格丨Style:法式

//

切开的牛油果

配上奶油白

精致的法式灯盘

雕花线条与黄铜

优雅的法式风格

生活在这里任谁不心动

-

关于设计丨About Design

女屋主的内心一直都有一个童话小屋,仙气飘飘唯美又梦幻。她对自己未装修来的家,有非常清新的诉求,就是可以实现她梦寐以求的精致空间,也能将复古的浪漫延续到底。

//

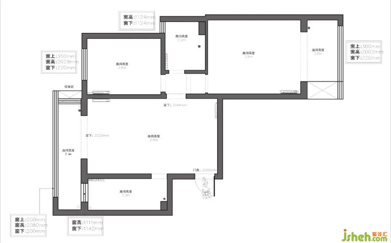
户型图

原户型客厅厨房整体是朝北,主卧还有一处南向阳台,由于隔断门原因使主卧看起来并不宽敞。包括户型内,有很多动线并不是很理想,卫生间的尺寸也有待优化。墙体大部分是承重墙,只有卫生间和主卧之间的墙装修体是可以拆除的。

1.拆除卫生间的墙体,向主卧内扩30公分,扩大卫生间使用面积

2.拆除主卧和阳台的隔断门,把阳台的面积划分到主卧,优化主卧的尺度感。

3.拆除厨房和阳台之间的半墙窗户,把阳台,客厅,厨房串联起来的同时形成了流畅的洄游动线,优化动线增强使用感受。

4.次卧增加了整排的储物衣柜,满足女业主的日常储物需求。

-

客厅

法式风格主要以精致的石膏线条做装饰,搭配部分黄铜饰品,营造装修出浪漫的居住环境。

纯黑色的电视柜搭配深灰色沙发,使客厅更加沉稳,橘色的窗帘使整体不显沉闷。

电视墙选用装修了一款简洁的玻璃质感壁灯,照明的同时又能很好的起到装饰作用。

客厅阳台的垭口进行了圆弧的处理,装修淡化了直角带来的生硬感,电视柜的高角设计更加方便卫生的清理。

经纱帘过滤过的光线更加柔和,大理石茶几的台面让空间的材质更有层次。

暖暖的焦糖色圆形椅与深灰色的沙发,产生一装修冷一暖的强烈对比。

北京久栖室内设计有限责任公司

设计收费:100~400 元/平             

擅长类型: 家居设计

在线咨询

扫描二维码关注我们的微信

深圳市聚设汇文化传媒有限公司
主编热线:15602987227
总部:深圳市罗湖区梨园路128号宝能汽车大楼416单元
佛山、东莞、成都、重庆、福州、厦门、南昌、武汉、
杭州、苏州、温州、郑州、长春、沈阳、贵阳、柳州、
哈尔滨、九江等城市设立办事处
© 2017-2021 Jsheh.com 版权所有 粤ICP备17079093号
展开
回到顶部