欢迎光临聚设汇,装修找设计就上聚设汇!
   咨询电话:15602987227
登录    注册
聚设汇
首页 > 家装 > 卫生间被挪走后,宽敞实用同时有,她家梳妆台让人更心动

卫生间被挪走后,宽敞实用同时有,她家梳妆台让人更心动

坐标丨Position:北京菜园北里

设计团队丨Design Team:久栖装修设计

面积丨Area:50㎡

造价丨Cost:25万

风格丨Style:法式简约

-

再小的家

也有自己的气质

//

奶油白不止于温柔

基因里都带着仙气

这个家是一对90后小夫妻的温暖新居,在未来的短时间内,他们做装修设计好会有小宝宝的计划,同时老人也会过来小住。基本需求,是希望客厅以多功能的形式呈现;卫生实现干湿分离 ;除此之外,满足当前二人世界的同时,也要考虑空间的多变性。

-

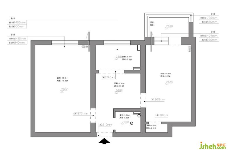
原始户型

原始户型是个两室一厨一卫的格局。一进门的卫生间,不仅是暗卫,还直接挡住了入户区的光线。

入户也没有玄关收纳功能,日常出入的鞋子、包包等小物件没办法及时进行整理。

旧房的通病就是厅小卧室大,这让想要餐厅的两位屋主,觉得这么小的房子真是捉襟见肘。

平时生活里,更缺少不了工作,有办公习惯的男主需要一间装修设计独立书房,是他最大的夙愿。

-

平面方案

1.卫生间借位到了卧室部分,通过对走廊的改造,满足干湿分离多人使用。

2.增加门厅玄关鞋柜,解决了门厅的工具储物等收纳问题。

3.装修设计将原卧室打造多功能房间,满足办公、观影、居住需求,让功能灵活多变。

4.实现开放式厨房,增加了操作台上的使用面积。

-

客厅

法式线条加金属壁灯,使空间更精致温柔。装修设计可以随时切换出来的投影幕布,配合照明均匀的无主灯设计,让家该有的休闲氛围感十足。

客厅的收纳柜,下方留出的空位,正好满足沙发的摆放。书柜与窗台选择相接近的木色,视觉上让整个空间装修设计更有延伸感。

装修设计将原来阳台的半墙隔断,改造成转角书桌。不用封阳台,就能装修凭空增加出一间独立书房。当阳光晒进来,整个家都变得很暖。

-

餐厅

餐厨一体让空间的动线和功能性,都得到了大大提升。吧台选择带有纹理的白色石材,装修设计搭配浅灰色卡座,自带一种清冷装修气质。餐桌上方的轨道插座,让吃火锅和烤肉不要太方便。

复装修古的墨绿色,从走廊延伸到餐厅,装修设计让家突然变得美貌起来。

北京久栖室内设计有限责任公司

设计收费:100~400 元/平             

擅长类型: 家居设计

在线咨询

扫描二维码关注我们的微信

深圳市聚设汇文化传媒有限公司
主编热线:15602987227
总部:深圳市罗湖区梨园路128号宝能汽车大楼416单元
佛山、东莞、成都、重庆、福州、厦门、南昌、武汉、
杭州、苏州、温州、郑州、长春、沈阳、贵阳、柳州、
哈尔滨、九江等城市设立办事处
© 2017-2021 Jsheh.com 版权所有 粤ICP备17079093号
展开
回到顶部