欢迎光临聚设汇,装修找设计就上聚设汇!
   咨询电话:15602987227
登录    注册
聚设汇
首页 > 家装 > 北京苹果派社区室内装修:宜动宜静的双层北欧晴宅,构筑双倍惬意慢时光

北京苹果派社区室内装修:宜动宜静的双层北欧晴宅,构筑双倍惬意慢时光

坐标丨Position:北京苹果派社区室内装修

设计团队丨Design Team:久栖设计

面积丨Area:142㎡

造价丨Cost:45万

风格丨Style:北欧

-

空间也有自己

未完待续的故事NEP

//

令人向往的双层居室

值得与自己共存LVN

本案项目地点位于北京朝阳,房子是上下两层的LOFT顶层住宅。使用面积一共117㎡,主要常住是五口人,包括一对年轻夫妇+孩子+两位父母。因为人数多,大家都对自己的房子有很多想法,女主人甚至已经用三维软件,做了很长时间的梳理,她迫切期待着可以将这所旧宅,晋升为三代人的理想新家。

通过对屋主的需求和喜好梳理,我们将房子的整体进行了改造。旨在打造一个温暖可室内装修爱,环保健康,便捷舒适,宜动宜静的三代人新宅。

-

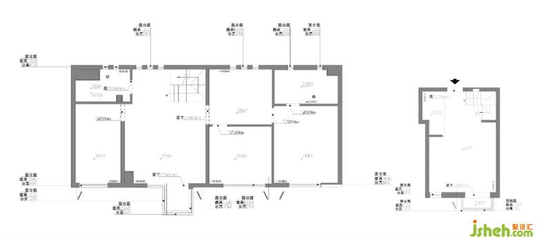
原始户型

原始户型为两层,一层分别是门厅,楼梯,厨房和餐厅。二层为客厅,主卧,主卫,书房,父母房和儿童房等空间。在二层窗外还有一处露天阳台区。屋主明确表达不喜欢原有楼梯,因为一上去就正对卫生间。并且希望一二层有连接。主卧想增加独立的衣帽间,主卫尽量缩小些。在明确屋主意愿后,我们还室内装修分析到这种上下两层的空间,生活区域一般更多在楼上。所以楼上也要能充当起居室的功能,也要有直饮水,也要有果蔬和饮品等食物的临时存放。当然洗衣晾晒等功能规划,也在楼上会更加实用。现在孩子还小,经常跑跑闹闹,楼梯除了改变位置,还要兼顾安全的特性,对于装饰风格,也做了整体的提炼,简单而有温度是他们的一大诉求。在整体梳理和规划后,达到安全便捷,并且温暖舒适的理想居家。

-

平面方案

1.门厅规划了系统的收纳空间,楼梯改动了朝向,增加了收纳的同时,连接了楼上楼下的通风和光影,

2.一层为门厅,储物间,餐厨空间等。是起居生活,下午茶,以及家庭聚会的好地方。

3.二层楼梯上来后,面向整个大客厅的全貌,宽敞明亮,视野豁达。并设置取水,冰箱,鞋柜等生活服务区。

4.打通窗户与阳台的空间,给自己增加一个露天花园。

5.客厅和书房为公共空间,相互连通,开敞通透。让孩子跑动玩耍,都是自由自在的,打造宜动宜静的理想生活厅。

6.儿童房临墙设置床,给孩子更多的安全感,预留更多的活动空间。

7.主卧通过衣帽间增加收纳,主卫实现干湿分区,暗藏推拉门,为卫生间的内部,节省更多空间。

8.室内装修整个空间的色彩和元素以霜雪白,豆蔻青,羽灰蓝等,为主要背景。绿植和木质自然元素,融入温润自然质感,局部再提纯同类色跳色。让空间温暖,明亮,轻快。摒弃繁芜,回归自然舒适

9.增加空间感的同时,也为家人的互动连接,制造了更多场景,让这个家宜静宜动,承载居住者真实的生活点滴。

-

客厅

客厅保留大面积活动区,给孩子腾出来跑动的空间。家具的选择多为低矮家具,对孩子视角更友善。阳光透过窗帘,让光影随室内装修着时间而变幻。

沙发背景墙的分色,做了弧度处理,室内装修让空间更有层次和趣味性,家就该如此柔软。

客厅也是整个二层的转换空间,连接着楼下和楼上室内装修以及阳台。楼梯处做到顶的栏杆,也为安全性上提供保障。沙发背景墙的弧形和书房的弧形门洞做呼应,整个烟蓝色和双雪白做背景。加入温润的木色,让整个空间柔和且静谧。

电视墙顶面暗藏了投影幕布,在家就可以享受精彩美妙的大片。从客厅望向书房,视线室内装修自由,开敞通透。在弧形的门洞下,是对另一个空间的互动与温柔表达。

从门洞反看的视角,概括了客厅的全貌。以轻柔色调为基础,辅以几种从浅到深不同质感的木色,呼应明媚的自然光线,室内装修烘托出空间宁静惬意的感受。绿植的生机感搭配木色的同时,让家变得自然室内装修又清新。

北京久栖室内设计有限责任公司

设计收费:100~400 元/平             

擅长类型: 家居设计

在线咨询

扫描二维码关注我们的微信

深圳市聚设汇文化传媒有限公司
主编热线:15602987227
总部:深圳市罗湖区梨园路128号宝能汽车大楼416单元
佛山、东莞、成都、重庆、福州、厦门、南昌、武汉、
杭州、苏州、温州、郑州、长春、沈阳、贵阳、柳州、
哈尔滨、九江等城市设立办事处
© 2017-2021 Jsheh.com 版权所有 粤ICP备17079093号
展开
回到顶部