欢迎光临聚设汇,装修找设计就上聚设汇!
   咨询电话:15602987227
登录    注册
聚设汇
首页 > 家装 > 室内设计将细节藏在生活各处的简约风,65㎡竟然拥有超强隐藏功能

室内设计将细节藏在生活各处的简约风,65㎡竟然拥有超强隐藏功能

坐标丨Position:北京北洼东里室内设计

设计团队丨Design Team:久栖设计

面积丨Area:65㎡

造价丨Cost:30万

风格丨Style:简约

——

不单一的功能设计可以隐藏

家的边界感

//

满满的细节感生活的纯粹也许就是如此

房子位于北京海淀区,套内面积为65㎡的旧房改造。常住是两个人,而且两位屋主都是在校教师,因为疫情原因还会在家偶尔上网课。所以要提前预留两个,互不打扰的临时网课的空间。对于风室内设计格和氛围,希望打造一个简洁,素雅,平和,淡泊名利的空间。在空间中获得了更大的自由,既灵动,又舒心。

//

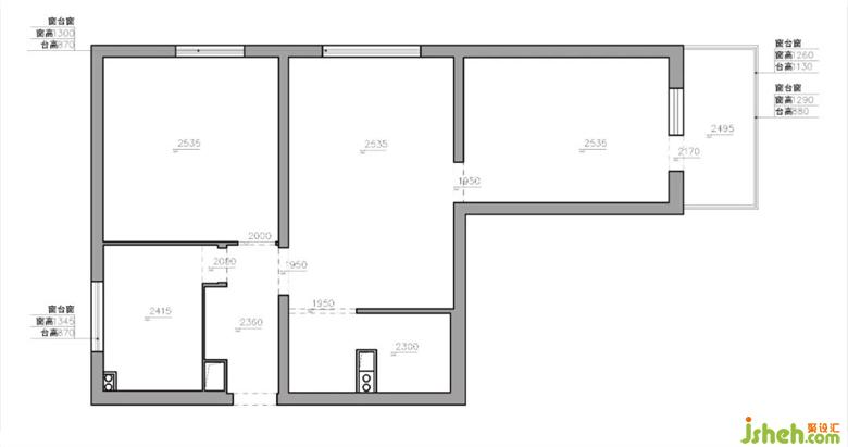
原始户型

原本是一套两室一厅的常规户型,对于每个空间都有相应的需求。

1.希望门厅有系统性收纳。

2.客厅和餐厅能够贯穿更多收纳,平时可以把餐桌收起来。

3.两间卧室都要预留,居家办公上网课的位置。

4.厨房要能满足正常使用的情况下,留有一个用餐室内设计的空间。

5.卫生间要干湿分离。

6.家里需要大量的收纳,每个空间都要增加,并且不能影响空间的简洁。

在对整个空间规划时,门厅室内设计做了系统的收纳,入户门位置避免了进门正对卧室门,形成了端景的位置,同时隐藏了次卧的衣柜。客餐厅连接,通过墙面一体的柜子,室内设计让空间更有完整性。并且增加了收纳及展示的空间,还把餐桌隐藏其中。卧室承担了大量书籍的收纳,两个卧室都增加了临时网课的空间。洗漱台和家政间连为一体,与卫生间里面形成干湿分离,增加利用率。厨房设置为U型厨房,以方便就近高效用餐。全屋的收纳是设计的重点,因此在各个空间中,都加入了很多细节来拓展收纳。

//

客厅

整个客厅与餐厅合为一体,互相融合。整面的柜子隐藏了餐桌和主卧的门,使整个空间连贯一体,大气整齐。从色彩和氛围的营造上,我们选用了低饱和度及大量的中性灰色,去覆盖空间。营造出一种整洁,冷静的高室内设计级感。

客厅的呈现,给空间营室内设计造不同的氛围。清浅的背景中,一抹活力的蓝和橙色,让客厅打破黑白灰的素雅,不经意间焕发出自然的活力。在空间中显得色块明朗,层次分明。

电视背景墙采用部分开放式展示柜,摆放主人公喜爱的艺术摆件,增添空间趣味性。室内设计通过隐形门的形式与餐厅区域合为一体,让简约质感体现得淋漓尽致,达到整体贯连一致,色系的统一感。

透过洁白的窗帘,洒进温柔的日光,将这个小角落衬托得室内设计清爽利落,温柔清净。吊顶的无主灯设计,采用明装轨道灯的形式,在最不影响吊顶高度的同时,实现光照效果。

//

餐厅

餐厅与客厅保持了风格的延续,大面积的留白与素雅的灰色,营造了空间的干净高雅之感。部分开放格的位置,则为了生活中,过往回忆物件的展示,为了一丝室内设计家的温暖。纯粹的艺术光感,隐隐约约中传达出美好的情境,让空间更具温雅艺术。从隐形的柜子中隐藏了餐桌的位置,以备有他们的宝宝后,更方便收纳起来,给孩子预留更多的玩耍空间。

北京久栖室内设计有限责任公司

设计收费:100~400 元/平             

擅长类型: 家居设计

在线咨询

扫描二维码关注我们的微信

深圳市聚设汇文化传媒有限公司
主编热线:15602987227
总部:深圳市罗湖区梨园路128号宝能汽车大楼416单元
佛山、东莞、成都、重庆、福州、厦门、南昌、武汉、
杭州、苏州、温州、郑州、长春、沈阳、贵阳、柳州、
哈尔滨、九江等城市设立办事处
© 2017-2021 Jsheh.com 版权所有 粤ICP备17079093号
展开
回到顶部