欢迎光临聚设汇,装修找设计就上聚设汇!
   咨询电话:15602987227
登录    注册
聚设汇
首页 > 家装 > 洄游动线装修打造动静分区,她家68㎡小户型应有尽有

洄游动线装修打造动静分区,她家68㎡小户型应有尽有

坐标丨Position:北京格兰山水装修

设计团队丨Design Team:久栖设计

面积丨Area:68㎡

造价丨Cost:30万

风格丨Style:北欧

——

生活的律动中

有光有影

心暖之处

才有家装修的温暖

也是

底气十足的 自然气场

项目在延庆,起初是刚过户的二手房,是小夫妻作为婚房使用的。他们的三年内的计划还没有准备要小孩,但父母偶尔装修来居住。因为有泡澡的习惯,女主强烈希望能在不大的装修卫生间里增加浴。虽然人数不多,但是爱穿的他们,衣服还是蛮多的,需要一个相对独立的衣帽间。

——

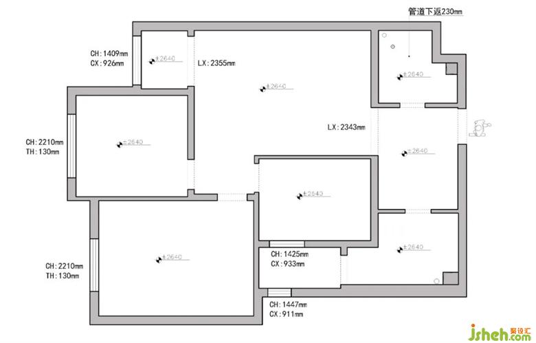
原石户型

原户型还算方正,只不过三居的空间,动线上相对乏味,不够灵活。入户玄关等经常走动的部分相对浪费,厨房空间狭小。

——

平面方案

1.卫生间增加小型浴缸,把洗手池独立出来,实现卫生间的干湿分离。

2.玄关处增加整高的鞋柜,延长橱柜操作台装修面,内嵌冰箱增加储物。

3.保留两个采光相对好的空间做卧室,利用第三间卧室空间植入衣帽间功能的同时,增加了洄游动线,使空间更加流畅。动线串联起多个空间,使其增加了更多的互动与联系。

4.打通东阳台,做洗衣房。

——

客厅

客厅空间整体色装修调以白色,原木色,灰色为主,小面积点缀金色元素,冷暖对比,整个空间温暖不油腻。

朝南的窗户采光非常好,百叶帘成了光线的分割器,光线柔装修和不刺眼。

整合客厅的一面墙,分别置装修入书柜和隐形门。红橡木统一材质,两个门洞形成的洄游动线将客厅,衣帽间,卧室,阳台多个串联起来,加强空间之间联系的同时,增添空间的趣味性。

橙色给人一种积极向上有活力的氛围装修感,让宁静的空间增强了视觉感受。

——

餐厅

沙发背景墙相对简洁,餐柜餐桌椅选了接近电视背景墙一样的用色,保证空间的材质尽装修可能的统一。

北京久栖室内设计有限责任公司

设计收费:100~400 元/平             

擅长类型: 家居设计

在线咨询

扫描二维码关注我们的微信

深圳市聚设汇文化传媒有限公司
主编热线:15602987227
总部:深圳市罗湖区梨园路128号宝能汽车大楼416单元
佛山、东莞、成都、重庆、福州、厦门、南昌、武汉、
杭州、苏州、温州、郑州、长春、沈阳、贵阳、柳州、
哈尔滨、九江等城市设立办事处
© 2017-2021 Jsheh.com 版权所有 粤ICP备17079093号
展开
回到顶部