欢迎光临聚设汇,装修找设计就上聚设汇!
   咨询电话:15602987227
登录    注册
聚设汇
首页 > 家装 > 110㎡简约灰度空间,满足一切对家的幻想

110㎡简约灰度空间,满足一切对家的幻想

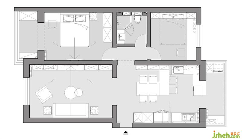
户型信息丨About Room

坐标丨Position:北京颐和山庄

设计团队丨Design Team:久栖设计

面积丨Area:110㎡

造价丨Cost:50万

风格丨Style:现代简约

关于设计丨About Design

屋主是一对年轻的夫妻,房子目前是二人居住。父母过来居住的情况比较少,所以将次卧打造成书房,也希望能为亲友留宿提供便利。屋主比较喜欢简洁的现代风,所以整体用色比较素雅,赋予空间一种简练的高级感。

这是一套南北通透的户型,因为是南向所以整体的采光很好。户型的整体结构基本为承重墙,所以可以改造的地方不多。空间的分布还算合理,但是卧室阳台和厨房阳台的室内窗,有些影响整体的通透感。

1.首先拆除了两个阳台处的室内窗,让空间显得更加通透,同时也增强空间动线的流畅性。

2.玄关收纳与餐厅收纳结合在一起,并将烤箱、冰箱等电器嵌入其中,使整体更加整洁。

3.客厅采用了储物式电视背景墙作为装饰,充分满足了住户的收纳需求。

4.餐厅厨房联动并利用吧台作为隔断,吧台后增加了一扇推拉门,解决中厨油烟问题。

5.两个阳台分别定制了储物柜,充分利用空间增强收纳,避免产生空间浪费。

客厅整体选用了经典的黑白灰三色进行搭配,营造一种简约干练的现代风格。南向的格局让空间有一个良好的采光效果,让空间整体可以保持一个温馨舒适的家居氛围。

户型南北通透,只需要将两边的窗户打开,舒适的过堂风让你可以连空调的不用开。从客厅望向厨房,整体成一条直线通透感十足。

顶天立地的收纳式的电视背景墙,不仅拥有不俗的装修性,强大的储物功能,解决你居住过程中物品存储的后顾之忧。两种颜色的板材也可以避免审美疲劳,让空间不再显得单调。

沙发背景选用简约的铁艺挂钟作为装饰,搭配金属质感的落地灯,显得简约又大气。

玄关柜与餐厅的储物柜形成一个整体,底部预留一部分空间可以摆放拖鞋。中间预留了开放格方便进门存放包包、钥匙等物品。右侧增加一个伞架,防止雨伞弄湿地面。

餐厅左右双动线,左侧吧台可以作为一个临时的办公区,右侧动线延伸贯穿,厨、客、餐整个区域。餐厅两边都设有收纳柜,让整体的储物功能得到的大大的加强。半开放式的厨房用推拉门进行隔断。保证空间宽敞、明亮的同时,还能提升互动感。

餐厅的背景选用了木质格栅作为装饰,柔和的原木色可以让餐厅的用餐氛围更加温馨。木格栅凹凸有致的线条,也可以提升空间层次增强空间的现代感。

餐厅的餐桌选用岩板材质,搭配风格简约的金属吊灯,彰显极具现代设计的美感。黑色的餐桌椅与黑暖色的光源形成对比,岩板所带来的自然高级感,让整个餐厨空间的氛围恰到好处。

餐厅的收纳与玄关的收纳相连接,整高的收纳柜不仅容量充足还显得更加整齐。冰箱与烤箱都利用储物柜嵌入其中,合理的利用每一处空间,消除整体的拥挤感。

半开放式的厨房用推拉门进行分割,有效避免了油烟的逸散。打开推拉门利用吧台作为厨房和餐厅的过渡,平时做配餐台或者茶点小食都很方便。

将洗衣机与烘干机挪到了厨房阳台,并用储物柜进行包裹形成一个整体。洗涤用品和晾衣工具都可以放在柜子里,让物品可以集中存放。

北京久栖室内设计有限责任公司

设计收费:100~400 元/平             

擅长类型: 家居设计

在线咨询

扫描二维码关注我们的微信

深圳市聚设汇文化传媒有限公司
主编热线:15602987227
总部:深圳市罗湖区梨园路128号宝能汽车大楼416单元
佛山、东莞、成都、重庆、福州、厦门、南昌、武汉、
杭州、苏州、温州、郑州、长春、沈阳、贵阳、柳州、
哈尔滨、九江等城市设立办事处
© 2017-2021 Jsheh.com 版权所有 粤ICP备17079093号
展开
回到顶部