案例信息
项目 | Location : 鑫嘉园
建筑面积 | Square meters : 127㎡
竣工时间 | Time for completion:2022.3
项目类型 | Project type : 住宅
风格 | Style : 现代简约
主案设计 | Main design : 王晓樱
执行设计 | Executive design : 魏毓 毛家利 胡俊杰
服务模式 | Service mode :全案设计
部分主材 | Some main materials : 简一瓷砖、TOTO卫浴、西克曼全屋定制、久盛地板、本杰明乳胶漆
公众号运营 | Operate : 舍南巷
空间摄影 | Space photography :舍南巷
视频拍摄 | Videofrequency :龙武
辰光的界线向后倒转,一寸一寸没入地平;风翻弄着光阴的书页,定格在最特殊的某年某月某天。怪诞从不是贬义词,鑫嘉园家居设计不普通的异形空间才能创造出打上私人烙印的个性家居。
01「设计定位 」
可治愈人心的现代生活空间
JI CHUANG DESIGN
鑫嘉园家居设计以现代简约手法铺陈发散,寻求时尚风格与舒适享受之间的平衡,同时又确保其具备灵活可塑性,为生活带来惊喜。
02「色彩运用 」
黑白灰+墨绿色
JI CHUANG DESIGN
色彩提取江南山水间烟雨朦胧的大面积黑白灰+墨绿色点缀,产生一种与简单、纯粹、舒适共鸣的对话形式,呈现自然生机与现代审美。
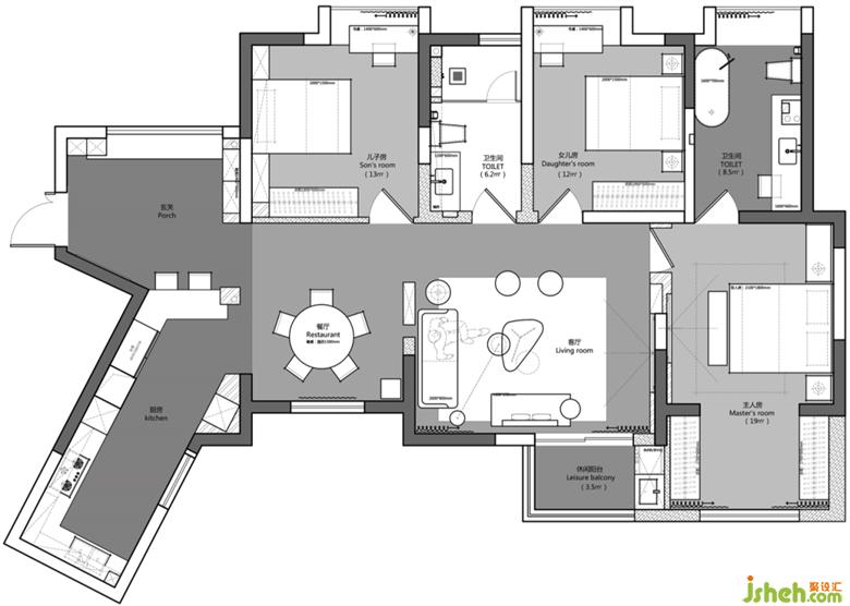
03「空间实景呈现 」
异形空间可塑造之美
JI CHUANG DESIGN

ENTRANCE HALL
入户/ 布局



独特的异形结构总是能带给空间创造无数的惊喜,推开门的那一刻,映入眼帘的就是一幅与众不同的画面。宽敞的入户,鑫嘉园家居设计一面是造型独特具有隔断功能的玄关墙,一面是简单干净的矮柜收纳,不同材质的对比与功能搭配,营造出空间的高级感。

