案例信息
项目 | Location : 星海汐音别墅全案设计
建筑面积 | Square meters : 290㎡
竣工时间 | Time for completion:2023.2
项目类型 | Project type : 私宅
空间风格 | Style : 现代简约
主案设计 | Main design : 王晓樱 江俊
执行设计 | Executive design : 何松林 胡俊杰 毛家利
服务模式 | Service mode :全案设计
空间材质 | Space material : 木质、金属、岩板、玻璃、艺术漆、透光膜、冲孔铝板
部分主材 | Some main materials:西克曼橱柜、海尔智享科技、金意陶瓷砖、汉斯格雅、大自然木地板、西顿照明、欧瑞博智能、顶固定制、简纳斯门窗
公众号运营 | Operate : 舍南巷
空间摄影 | Spatial photography : 龙武
生活是一场境遇,自有流光如练,静谧之华。别墅设计以深海的蓝,捕捉艺术光影,别墅全案设计营造自然氛围,林下漏月光,疏疏如残雪,在空间中寻找存在于自然中一种隐匿空灵的意境。
Life is a situation, with its own flowing light, such as practice, and a tranquil atmosphere. Capture artistic light and shadow with the blue of the deep sea, create a natural atmosphere, leak moonlight under the forest, sparse as snow, and search for a hidden and ethereal artistic conception existing in nature in space.
01空间定位
SPATIAL POSITIONING
接近于本质 存在于自然
整个设计通过对艺术光影的捕捉
与自然氛围的营造
建构、肌理、光线、空气、气味等元素的灵活运用
别墅全案设计在巧妙的空间处理中
简化肌理而接近本质
寻找一种隐匿的和谐存在于自然
谱写“云林绝幽处”的空灵
02色彩分析
COLOR ANALYSIS
黑白灰+深海蓝
色彩提取深海里的蓝色
大面积的黑白灰色+深海蓝点缀色
产生一种与简单、纯粹、舒适共鸣的对话形式
别墅全案设计呈现自然生机与现代审美
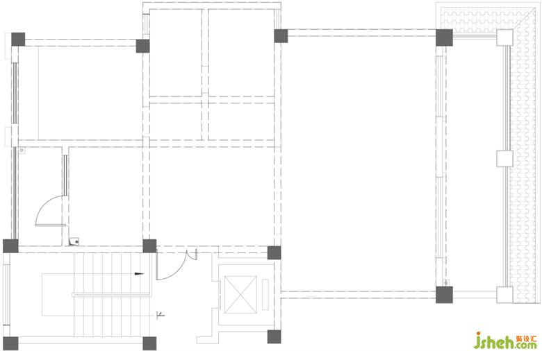
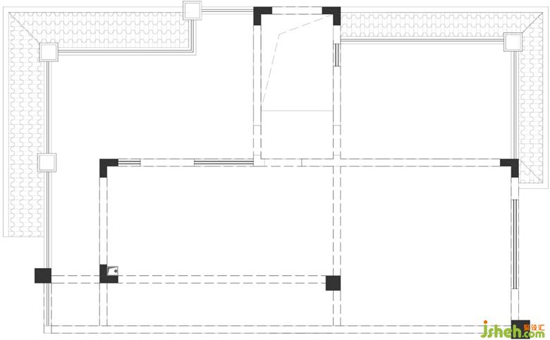
03 布局规划
LAYOUT PLANNING
动静分区 大气疏阔

一楼平面布局

二楼平面布局

三楼平面布局
户型布局改善
1、一楼为公共活动区域,别墅全案设计把厨房外移到生活阳台,留出的位置增加西厨设计,同时与餐厅形成开放式布局,让用餐环境更为开阔,大气;
2、二楼布局老人套房与儿童房。儿童房把原本镂空位置做现浇搭建,完善空间,增加使用面积;老人房做分离式套房,看似整体,却相互独立;
3、三楼整个空间为主卧套房,配备宽裕的起居区、衣帽间、卫生间,功能齐全,舒适有调