案例信息
项目 | Location : 丽雅籣宸样板间设计
建筑面积 | Square meters : 97㎡
竣工时间 | Time for completion:2023.1
项目类型 | Project type : 商业
空间风格 | Style : 现代原木风自然风
主案设计 | Main design : 王晓樱 江俊
执行设计 | Executive design : 郭仕林 毛家利 胡俊杰
服务模式 | Service mode :全案设计
空间材质 | Space material:肤感艺术漆、墙板、石材、实木地板、布艺
公众号运营 | Operate : 舍南巷
空间摄影 | Spatial photography : 舍南巷
“我们大多数人都只让外在的转瞬即逝的环境成为自己忙碌的缘由,实际上,它是使我们分心的原因。离万物最近的东西才是创造生命的力量。”
"Most of us only let the external fleeting environment become the reason for our busyness. In fact, it is the reason for our distraction. The closest thing to everything is the power to create life."——Excerpt from Thoreau's
《Walden Lake》
01空间定位
SPATIAL POSITIONING
原木暖居 回归自然新主张
原木色+白永远的自然主流
安逸和平静
样板间设计让置身在这个空间中的人无比放松
仿佛时间就那么一滴滴的在流淌
你甚至可以感知他的存在和轨迹
林深时见鹿 海蓝时见鲸
02色彩分析
COLOR ANALYSIS
原木色+ 白色 + 橄榄绿
绿色本身象征着大自然
象征着生态健康
融合了白色、浅灰色、米色
体现出了人与自然和谐相处
生生不息的景象
03 空间实景呈现
REAL SCENE OF THE PROJECT
移景造境 天性释然
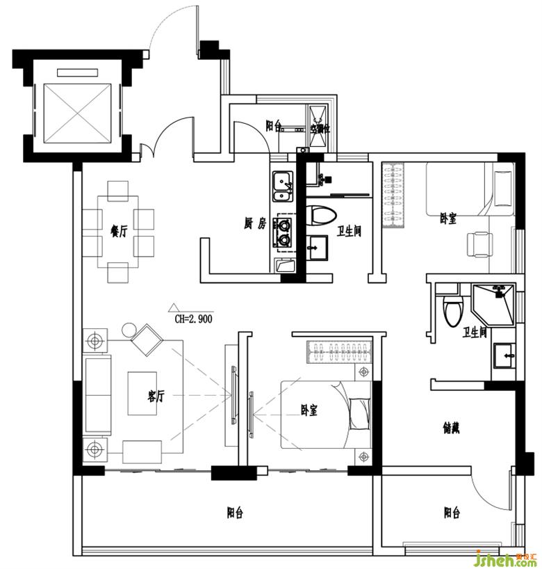
原始平面图
平面布局图
户型布局改善
1、取消厨房移动门、拆除墙体改为开放式厨房,增加岛、提升空间视觉尺度感;
2、样板间设计将客厅的沙发与电视墙更换方向,由入户进门餐厅的造型墙面整体延伸至客厅,让空间具有延伸感与通透感。
3、将次卧改成多功能开放式书房,拆除墙体用长虹玻璃做隔断,提升屋内采光的同时也让空间更轻盈。
4、将原储藏室+阳台的位置合并打造出一间主卧,主卧室柜体将墙体厚度做薄,让空间更宽裕一。
_
RESTAURANT AND KITCHEN
餐厅与厨房 / 布局
温暖木饰面是触发感性精神交触的密钥,而延伸设计与艺术共鸣的场景切面,又映射出不拘于形式的纯粹情感。家人坐于吧台前,分享可口的椰汁,与脚边猫咪逗趣,爱意点染,和谐共洽。

拆除厨房墙体做开放式结构
增加多功能岛台
实现中西厨的分离让储物有了分类
样板间设计提升空间视觉尺度的同时样板房设计增强区域互动性
烹饪也有了烟火和恬淡两种姿态