案例信息
项目 | Location : 台湾臻诚美学轻医美旗舰店装修设计
建筑面积 | Square meters : 1400㎡
竣工时间 | Time for completion:2022.3
项目类型 | Project type : 商业空间
风格 | Style : 现代
主案设计 | Main design : 王晓樱
执行设计 | Executive design : 胡俊杰、郭仕林、魏毓、毛家利
服务模式 | Service mode :全案设计
空间材质 | Space material : 不锈钢板、微水泥水磨石、渐变夹膜玻璃、亚克力
公众号运营 | Operate : 舍南巷
空间摄影 | Space photography : 龙武
雨露湿润草地,阳光扬洒湖泊,流星雨亲吻地球,在自然中轮转,医美旗舰店装修设计在宇宙里徘徊。女性的刚柔并济同水的状态一样,包容万象,随性共生——她们是水的柔和,是雪的纯净,是冰的坚强,是浪的激烈,是云层的飘渺,是雨滴的轻盈,是海洋的包容,是泡沫的梦幻。
01「设计概念 」
水无形而有万形
JI CHUANG DESIGN
水是一种永恒关系的存在形态,不太是某种具象的物质,但是它的本质和属性由它与周围的事物的关系而决定。当你望向水的时候,大多数时候你看到的是光的反射。
Water is an existence form of eternal relationship,not a concrete substance,but its essence and attribute are determined by its relationship with the surrounding things.When you look at the water,most of the time you see a reflection of light.
—— Ana mendieta
02「风格元素 」
温润如水 灵动如繁星
JI CHUANG DESIGN

整体氛围打造温馨、简约、时尚、国际化高端医美诊所。医美旗舰店装修设计以白色为主,灰色为辅,给人一个干净利落而不失温馨的空间;空间以水的柔美与坚毅糅合变幻,局部点缀红色与绿色,是自然、健康、自由的语言,让空间精致又灵动。
03「空间实景呈现 」
抽象再定义 建造人与自然的诗和远方
JI CHUANG DESIGN

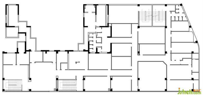
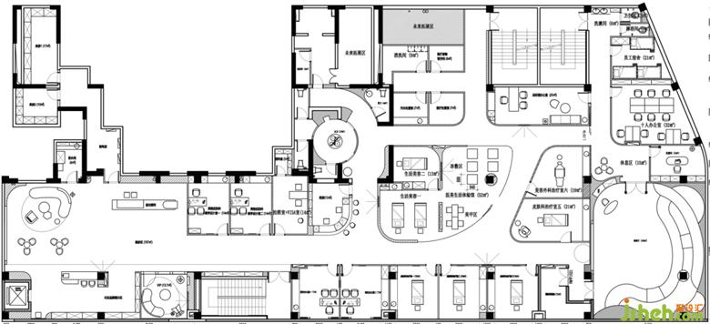
台湾臻诚美学轻医美是一家以“以诚造美,本质美学”为核心品牌价值的医美中心。医美中心拥有先进的医疗设备,集整形手术、女性医疗保养、微整注射、镭射光疗、术后护理及医疗美容于一体的高端医疗服务机构。考虑到此次项目的特殊性,我们将环境、风格、隐秘性、氛围作为设计的重点,医美旗舰店装修设计以“水无形而有万形”来表达温柔而坚定的女性力量,呈现出一间符合特定用途的高品质空间。
RECEPTION HALL
接待大厅

入户大厅营造出雅致、品味、含蓄的氛围,区别于传统的商业场所门面,这里有人与空间自然交流的磁场。不锈钢板、大理石、布艺等材料相互交织,深浅叠加的灰,刚硬理性中带有平静柔和,水的特性展现出艺术的矛盾,构成了一个高级静谧的商业空间。