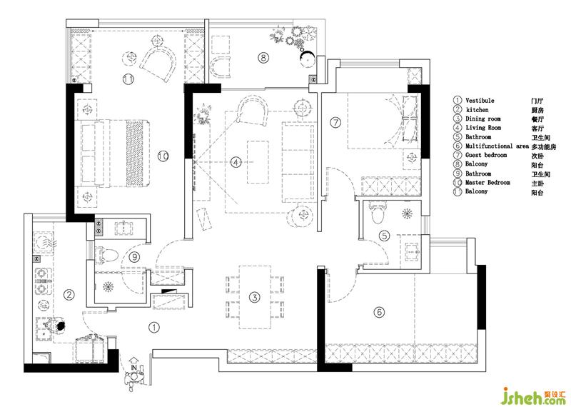
项目坐标 | Location四川 成都
项目面积 | Square Meters110㎡
风格定位 | Style 混 搭
项目类型 | Property私 宅
设计机构 | Studio予以设计
复古的物件
浓郁的色彩
碰撞出生活的质感
成为视觉上的艺术
与其说“复古”是一种风格,不如说“复古”是一种生活态度,对美的一种表达方式。它既是一种元素,也是一种独特气质的具体呈现。在本案例的设计过程中,坚持贯彻:只要是美的东西,我们尽力去尝试将其混搭在一起,不断寻求其中的平衡、和谐,并找到贴近且属于屋主独有的居住特点。



复古元素融入空间,运用金色质感材质加以点缀,营造出高雅的、灵动的画面氛围。



整齐有序的物件陈列映衬出屋主精致的生活状态,深蓝、深绿色的抱枕与浅色的布艺沙发在色相与明度上交相呼应,并形成冷暖色系对比,仿佛油画里的笔触,和谐、宁静。