项目信息
项目名称:流动的光别墅装饰
项目地址:四川成都
完成时间:2022年10月
设计总监:程远辉
设计团队:予以设计
施工团队:予以设计
主材:瓷砖、木地板、天然大理石、超白玻璃、钢板、不锈钢、木饰面
摄影:季光
房屋情况:
这是一套三跃四的上叠叠拼别墅,框架结构,柱体与梁结构承重,室内墙体可任意调整与设计。
原始二楼阳台区域与楼顶空间允许搭建,别墅装饰一二楼室内空间光线度略弱。
业主信息:
男业主外企高管,女业主小学老师,儿子9岁。
男业主与儿子是篮球迷,都喜欢打篮球。
男女业主喜欢养花、看书。
男业主在家时偶尔会有办公会议。
业主需求:
只需要主卧,儿子房,多功能间(储物、儿子可玩耍、客房功能),老人有自己房子,不会一起住。
储物空间尽量多,收纳整齐有序。
希望除了卧室,整个空间是开放的,包容性强的,居住在空间里,各自做自己事情时,三口之家能有更多的生活场景交互画面与情感交流。
希望在顶楼有一个露天篮球半场,在家也能练习打篮球。
希望空间温暖、有趣、有艺术性。
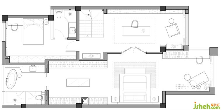
■1F原始结构图
❶门厅、客餐厅区域空间开阔,需要梳理出合理的居住动线,别墅装饰以不常规的布局思路去规划好客餐厅功能区。❷厨房空间狭长。❸一楼生活阳台区域空间尺度略小,晾晒欠佳。❹楼梯空间稍显孤立,缺少与整个空间的融合。
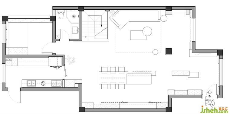
■1F平面布置图
❶一楼楼梯右侧墙面拆除,调整上楼梯方向,让楼梯融于整个空间。❷门厅中心动线处设计两处体块叠加,集储物与坐凳功能。体块介入,动线也一分为二,让门厅空间更显丰满。❸弱化电视墙,餐岛一体设计,岛台叠加体块,电视机镶嵌于体块盒内。客厅沙发布置于楼梯旁空间靠墙处,客餐厅的有机处理,梳理出分明的多条居住动线,整个空间宽敞,连贯。❹把原生活阳台融入厨房,厨房门口墙体相应内退,保证厨房体量的同时,释放出的空间与卫生间门口过道融合成一整体,空间更有层次。
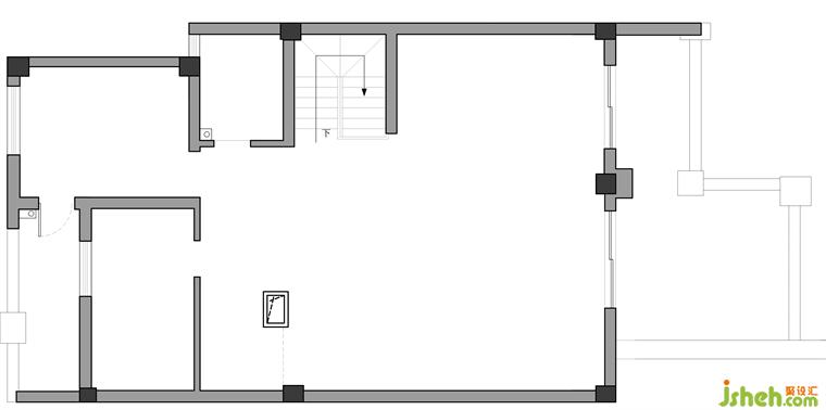
■2F原始结构图
❶露天阳台利用率不高。❷烟道位置影响空间布局。❸需设计主卧+衣帽间+主卫、儿童房、书房+卫生间功能区,并建立舒适的空间关系。
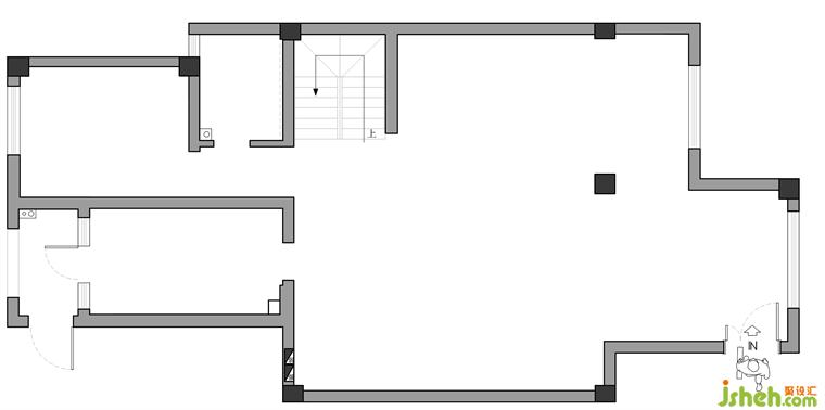
■2F平面布置图
❶搭建露天阳台区,融于室内空间。❷烟道移至附近墙位置,用衣帽间柜体包覆。❸主卧设计大套间,延续通透的空间体量。❹设计开放式书房,楼梯侧墙拆除;书房顶面的一部分楼板拆除;空间垂直向产生空间互动,以书房为中心,横向延展至主卧与楼梯间、儿童房,把整个空间串联起来。❺儿童房套卫生间,长虹玻璃隔断替代卫生间侧墙,让每处空间都显通透明亮。

■3F原始结构图
❶烟道位置影响空间布局。❷露天区域空间需要充分利用。
■3F平面布置图
❶搭建室内休闲区,通过设计大面积折叠门,与室外空间实现隔离或者融合。❷楼梯间顶部楼板拆除,设计钢板开孔透光顶,引进光线。❸设计玻璃栈道,与楼下空间产生空间关联,情感的互动。❹室外设计聚会喝茶休闲区、家政间、养花区、篮球运动区。
■设计概念及解决问题方式:❶以建筑的思维切入空间进行改造,别墅装饰通过空间纵向横向关联,创造720度生活场景画面。❷光与建筑,光与空间,空间与人之间的对话。❸通过“隔而不隔”的设计手法,让空间更明亮通透,营造一种家庭成员在家活动开放互通的状态。❹通过‘框景,借景’手法,建立室内外关系。❺顶楼空间充分利用,集室内休闲区、室外景观观景区、运动区、家政区于一体。
玄关
别墅装饰以柜子功能分区构建门厅的体块。入户端景装饰案台;入户左侧收纳鞋柜;中心区域可坐矮凳与收纳抽屉柜叠加。坐凳与屉柜叠加体块的介入,把门厅动线一分为二,增强了空间层次感,丰富了空间动线。


窗外景色映入眼帘。室内与室外的恰巧结合形成一幅美好的画面。