项目信息/
Project information/
项目位置 | Location :中国·成都
设计机构 | Studio:予以设计
施工团队 | construction:予以设计
项目面积 | Meters:197㎡
项目类型 | Property:私宅空间
设计时间 | Design Time:2022.01
现实与动漫同框,赋予空间不同寻常的生命力
Reality and anime are framed together,endowing space with extraordinary vitality
· 居住需求 Demand
1.一家四口居住
2.需要有儿童活动和学习办公空间
3.需要有放置展示收藏手办的区域,收纳空间需求高4.喜欢温暖简洁的空间,想要空间开阔
· 空间改造 Space renovation
豪宅设计空间氛围的步步经营,坚定不做同质化的“家”,通过设计“家”的细节与功能,呈现屋主的精神需求与特质。
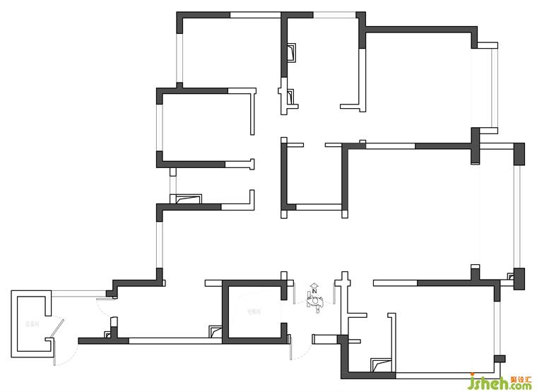
▼原始平面图
▼平面布置图
原始户型墙体基本是承重墙体,豪宅设计整体格局基本固定,我们在拆除原有的精装房造型及墙体后,根据屋主需要保留三个房间一个多功能房间的居住需求和生活习惯,重新规划了格局。
1.将入户段景区墙体拆除后进行内退来设计手办的展示柜,巧妙增加收纳功能来串联每个空间之间的关系2.多功能房门洞调整,将光线引进与过道空间进行关系串联
3.扩大厨房洞口,使空间比例得到延伸4.卫生间的布局调整,增加收纳空间
5.优化主卧及卫生间功能区动线,丰富空间的交流从而创造更多生活场景。



