坐标:四川省成都市
面积:58平米
户型:三室两厅一卫
落地时间:2020年03月
设计机构:予以设计
造价:15W
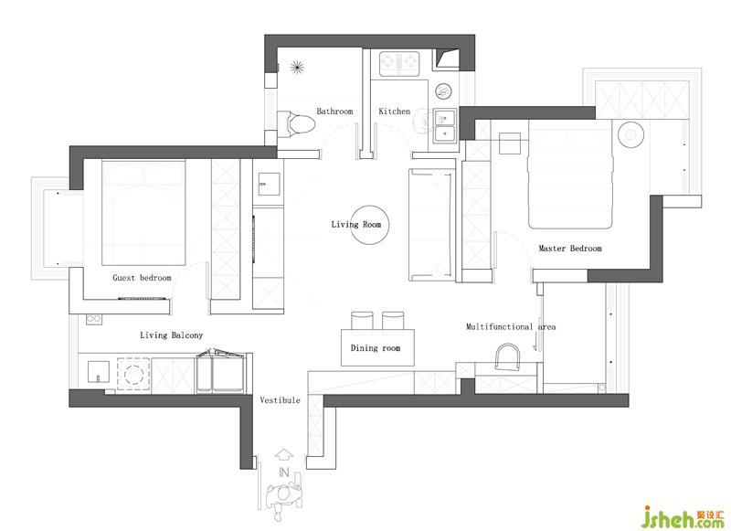
项目概况:
套内使用面积不足60平,有限的空间内,需要满足三居室功能的空间布局,营造一个有品位、舒适且能满足大小收纳的居家空间。
设计重点:
破局:室内设计师从原始空间结构入手,面对原始户型四处门洞开口、通道,打破固有思维,将门洞入口进行调整。散中规整,梳理出几面整墙,顺墙面布局,营造围和空间。原始进主次卧门洞封闭,梳理出两面整墙,使得客餐厅空间瞬间变宽敞,客餐厅靠三面整墙进行布局,中间留出活动区,建立围和空间,提高居住温度。
秩序:重新梳理空间动线,建立合理有效的居住习惯动向秩序,以客餐厅为中轴线,分为三条主动线。一条为厨卫与客餐厅共用动线,往左则是生活阳台与次卧共用动线,往右则是多功能室与主卧共用动线。
借光:尊重并充分利用自然光照,以客餐厅为圆心,缩短光线到中心路径。1,窗户进入光线不遮挡。2,厨卫门门开合之间光线的借入,带来干净清楚的视觉效果。
before
after



室内设计师重新布局的客厅能够恰恰放下三人位沙发,保证客厅功能的完整性。黑色茶几的加入丰富空间的层次,柜子色调与空间色调形成反差,扩宽了空间的视觉张力,简洁干练的同时不会显得单一。

客厅电视墙设计柜体与洗漱台的结合,功能叠加,辅助客厅收纳的同时,实现干湿分离。右侧门后是卫生间,因为原始面积原因,本身空间局促。室内设计师通过分析需求和对空间的重新整合,将洗漱台与电视墙作为一个整体设计,在解决使用需求的同时,将其融入到客厅的整体氛围中。

