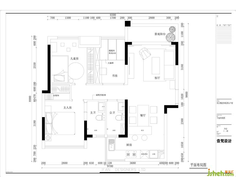
项目地址:惠州 · 南昆山 · 依云雅居
项目面积 :102㎡
主案设计 :袁伟平
软装设计:子墨
整体造价:58万
总在祈祷中念叨喜悦时
阅读天空 / 歌唱云朵
太阳注视着 / 树木也凝视着
我遗忘着 / 和我数不清的记忆
在漫长岁月里 / 与温暖的事相互依偎
[ Living room 客厅 ]
没有做柜子的客厅,处于一种空旷整齐的状态,被自然光充盈着的客厅,也变得温暖明亮起来;
客厅无主灯的设计在视觉上延伸层高,空间显得更加干净与简洁,室内设计师光线也更加均匀和有层次感。

整个空间色彩虽不多却不会有单调感。
通过洁净的白色与自然木色相结合,整体空间温润轻盈;布艺的蓝色沙发与同色系的海浪油画,不论从哪个角度看,都有“目光所及都是温柔”的感受;绿油油的植物,以生命的方式存在还是绘制在布艺上,都散发着生机勃勃的气息,让人舒适轻松。


以自然的肌理为灵感,每件家具纹路清晰,色彩干净,温馨感满满的。
[ Kitchen&Dining room 餐厨 ]
白色与原木色的搭配,餐厨空间干净明亮,清新自然;复古的黑白花砖别具一格,可爱又有情调,这里不单是烹饪美食,更是烹饪幸福生活。
开放式的厨房弥补餐厅的采光。
作为开放式厨房与餐厅的软隔断,小吧台的设计和整体融为一体,美观又实用。