Location / 地址
东莞 · 松山湖
Square Meters / 面积
190㎡
Disigner / 主案设计
袁伟平
Designer / 软装设计
子墨
Cost / 整体造价
90万
拥有一切的生活所需
阳光 与茶
有机会的话和你聊聊梦想
从稚嫩的双眼开始
从粗糙的指尖开始
深圳装修设计
从嘴角上扬开始
从睫毛下垂开始
或者 我们不语
静静地喝茶
抱着阳光不放
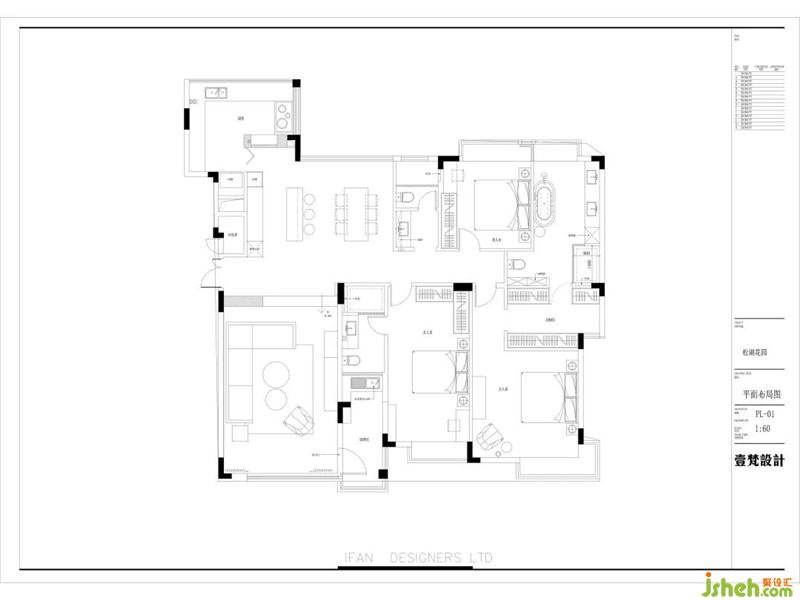
▲户型图
▲平面图
Ⅰ 将生活阳台改成中厨,扩大中厨面积,让烹饪更加得心应手;
Ⅱ 设计开放式西厨,增设冰箱摆放位置,提高鸡肋空间利用率;
Ⅲ 拓宽晾晒区空间,将墙体往女儿房卫生间移,提高生活便利性;
Ⅳ 改变女儿房开门位置,扩大卫生间面积,并借用主卧空间,设计衣柜;
Ⅴ 老人房“借”用卧室2空间,增设衣柜位置,解决收纳问题;
Ⅵ 主卧合并卧室2,将卧室2设计成大浴室,原来的主卫设计为步入式衣帽间。
[ Living room 客厅 ]
以叠加不同的灰色调为底色,空间高级又有格调;开放无拘的尺度与格局,视野通透而敞亮,摒弃繁杂的装饰,以实用简约为主,家整洁而明亮,一笔一线,勾勒出随性而自由的模样。

叠堆可变形的几何立体壁灯,富含创意又灵活自由,既点题又吸睛。

哑光质地的黑色花纹岩板充当沙发背景墙,家多了份原生态之感;于细微处见真章,即使是岩板上的花纹也精挑细选,如流云飘逸,清水潺潺。

将欧式大理石线条垂直拼贴,使古典元素变成现代感的“波浪”造型。电视背景的几个垂直的欧式线条深圳装修设计,将背景墙面竖向等分,细看有欧式元素的雅致,整体却又是现代利落的简约风格。古典元素变成了这幅“现代画”的笔触。
[ Kitchen 厨房 ]
优化空间格局,将生活阳台改成中厨,不仅扩大中厨面积,更让烹饪更加得心应手。