项目地址:惠州 · 南昆山 · 依云雅居
面积 :92㎡
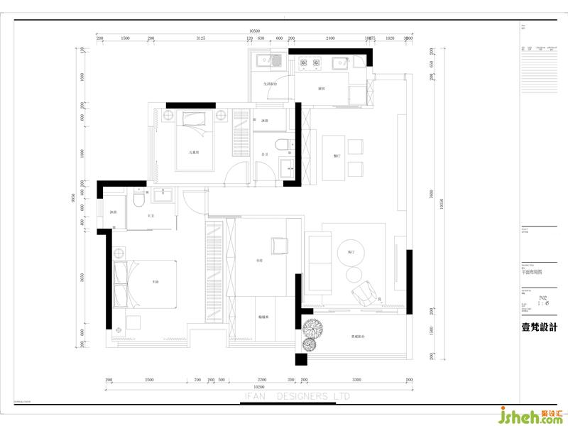
主案设计 :袁伟平
软装设计:子墨
整体造价:45万
无从知晓在那些漫长的旅行中
我们去了哪里
有时候是一片空白
就像使一切模糊难辨的雪
但我们终归要回到这里
一个明亮/暖和/会呼吸的家
然后,带着温柔的谦逊
让幸福降落
本案在空间改造上将书房的墙体拆除与客厅合并,并设计木质吊门,可以自由灵活的切换空间状态(封闭与开放);软装设计上主要以浅色系(木色和白色)为主,精挑细选的自然舒适的材质填满空间,打造一个宽阔通透、简约自然的居住空间室内装修设计。
[ Living room 客厅 ]







室内装修设计师优化空间格局,拆除书房墙体后,大限度的引入自然光,客厅的视觉面积立刻变大,使得原来小三房有“大宅”的效果,没有多余的装饰,简约流畅的线条游走整屋,客厅内外通透、干净明朗。
[ Dining room 餐厅 ]

借着客厅光线的穿透,餐厅在白天不开灯时也一如既往地明媚自然;卡座的设计节省空间又美观,搭配舒适的坐垫,营造出一种轻松惬意的用餐氛围。
[ Study 书房 ]
