05/Chapter 5
升华·撒旦|血腥的美丽穿越周期
Satanic Drama|Bloody Beauty Across Time
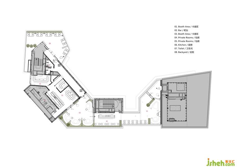
“天堂”与“地狱“诠释了血腥的美丽,这一化学分子在空间的一帧一镜中升华场所。开放式大厅分布着的就餐区呈异形开放式布局,在社交情绪中营造安全的距离感。一方面在分段式社交场所做出回流动线铺设,另一方面,空间在其高雅、混合、与混沌光影的晕染下形成混沌的雅奢品牌基调。空间整体基调呈黑红,Omakase首个操作台设置在餐厅的中心,是餐厅的第一个功能视觉焦点,服务于餐厅全部桌席的附属功能,选择了离每个区域最近的位置,铁板料理设计满足功能性的同时强调一种开放式神秘场域的空间情绪。与很多日料的平和不同,这是一种幽静与美好,嵌入了现代日式传统的另类精神。
Like “Heaven” and “Hell”, the venue boasts a bloody yet beautiful ambiance, where every subtle detail defines the sense of place. The open hall features a unique layout of the dining area, creating an atmosphere with a sense of distance formed by social emotions. The circulation design lays out the physical form for segmented social places, while the elegant, mixed, and blurred lighting effect creates a luxury brandimage with the force of chaos. The Omakase operational counter, located in the center of the black and redspace, serves as the first functional visual focus and provides auxiliary functions for all seating areas. Its location closest to each dining area maximizes its functions and emphasizes an open spatial mood in the mysterious field. Unlike many other Japanese restaurants, EVER BOOM is tranquil and beautiful, incorporating a distinctive style of modern Japanese spirit.
只有市场回归理性,产品力的重要性才会被看见。回撤的时候,还能否有持续的产品创新呢?由此,厚积薄发、博观约取,可以说是本次项目发布的主要内核。这场“硬气”的撒旦戏剧得以完整上演,缘于业主携AD团队基于市场需求顺应市场。中场空间布局方面,设计师预设了三角链岛台,回旋分隔人流,吞噬着饕殄的同时,感受空间剧场分子细腻的流窜,色香味俱全,升华场域。
The importance of having a powerful product can only be fully realized when the market returns to rationality. Continuous product innovation based on profound knowledge is crucial for the success of any project. In this project, theclient and AD ARCHITECTURE adapted to the market demand, resulting in a “strong-willed” satanic drama that was fully staged. The designers also added a playful triangle island in the middle of the space layout to separate the flow of people. Patrons can enjoy delicious food while experiencing the delicate dramaticvibe of the space, which satisfies both their senses and spirit.



06/Chapter 6
丛林•法则|雷鲍夫法则的人生哲学
Law of the Jungle|Life Philosophy
【城市基因】中锻造城市级餐饮的生态位令空间生而热烈,往深处走,隐藏在空间深部布局的是包厢位,铁板料理设计操作台上的饕殄储备与消费者的不同体验形成鲜明对比,场景感十足,形成客主位转换视角体验空间场域。空间基础结构除了弧线与线条以及材质外,在肌理勾画上将“城市脉像”的戏剧性勾画至空间各处,站在景观包房内着眼高楼邻立,坐拥后海汇的城市丛林法则表演。
EVER BOOM embodies the urban genes of Shenzhen, creating a bold and lively dining atmosphere. The VIP rooms are located deep within the restaurant while the operational counter provides an impressive display of the food and ingredients, providing patrons with rich experiences by altering the perspectives. The restaurant’s design incorporates the curves, lines, and materials of the basic structure, with textures that outline the dramatic sense of the “city context” all over the space. From the VIP room, customers can enjoy a view of the nearby high-rise buildings, observing the law of the jungle that is staged in Houhai Harbour.
空间中石材质感漆的墙面与蚀刻金属的碰撞,使空间在舒适中透露出高奢感。在柔和光线的衬托下,愈加显现空间的分量感。大面积落地玻璃将幕景与场域叠加,重体量的倒置感在具象的矛盾与抽象的平衡中传递空间的戏剧性。空间的状态表达则是思考分析中摸索出的已知答案。曲线的力量塑造出流动的感知,蕴含着设计师对生命本质的思考,它串联起理性空间和感性认知,立足当下,敬畏天地,更指引我们追寻天地生存环境的法则。
The space exudes an air of luxury and comfort because of the collision between the stone-texture paint wall and etched metal. The soft lighting further enhances the ambiance, creating a sense of weight in the area. The floor-to-ceiling glass makes the scene and fieldsuperpose,and the inversion of aheavy volume results in a dramatic yet balanced feeling. The designers’ exploration of thinking and analysis is evident in the expression of the space. The power of the curve createsfluidity, reflecting the designers’ thinking on the essence of life. The space connects rationality andsensibility, respecting the world and guiding people to pursue the law of the environment based on the present.

07/Chapter 7
一路·常虹|达尔文式的进化
EVER BOOM|Darwin-style Evolution
收官区域为空间重头戏,达尔文式进化出有别于市场场域的神秘性。石材与地面铺装、大面积铁锈漆覆盖、操作台搭配实木深色大山纹餐椅和斧凿面背景墙,整体空间材质偏向于沉稳,赋予空间神秘的质感。功能性装置老船木与局部细节相互呼应,含蓄的表达了商业空间淡墨的优雅。大面积运用质朴粗旷的洞石和沉稳的色调,干净大气的砚石有序排列铺述层次美感,使得空间体块的穿插烘托界面的整体性,营造出沉稳优雅的气质。阶段性产品持续提升产品力是我们一直都在做的事,我们只是选择在合适的时机让人们看见它,顺应市场表达品牌理念,从而增加品牌和顾客之间的深度联结,获得消费群体的青睐。
At the endarea of the space, EVER BOOM highlights Darwinian evolution with distinctive and mysterious textures. The use of stone materials on the floor and wall, a large area of rust feature paint, black wooden chairs with mountain patterns around the operational counter, and a chiseled background wall all contribute to this intention. The functional old timber installation echoes the space details, implicitly expressing the elegance of the commercial space. The large area of plain and rough travertine and calm tones, along with the clean and dignified arrangement of inkstones, creates a layered aesthetic that highlights the integrity of theinterior surfaces, resulting in a calm and elegant space. AD ARCHITECTURE has successfully expressed the brand concept inresponse to the market, creating a deep connection between the brand and customers and helping the brand to win the favor of consumer groups.
更多铁板料理设计请关注聚设汇装修平台: