欢迎光临聚设汇,装修找设计就上聚设汇!
   咨询电话:15602987227
登录    注册
聚设汇
首页 > 家装 > 无尘之境

无尘之境

-主卫-

高级灰调,给人平静的心境,让人可尽享这私密时光的欢欣。小小绿植,打破灰白空间的单调之感,同时带来一丝生气。

-多功能房-

次卧改造成多功能房间,既可以办公,又可以接待客人,甚至还是孩子的钢琴房。简洁清丽,配色暖中带一点蓝色点缀,十分亮眼。

女儿房间的设计同样彰显高洁与优雅。一束雏菊,寄托了父母对女儿的希望与祝福。

原始结构图

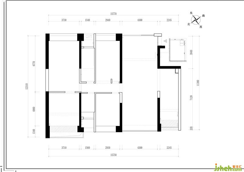
平面布置图

更多深圳室内设计师资讯请关注聚设汇装修平台:

深圳市嘉合缘室内设计师事务所有限公司

设计收费:600-1200 元/平             

擅长类型: 家装,豪宅,别墅,办公室

在线咨询

我的作品更多>>

扫描二维码关注我们的微信

深圳市聚设汇文化传媒有限公司
主编热线:15602987227
总部:深圳市罗湖区梨园路128号宝能汽车大楼416单元
佛山、东莞、成都、重庆、福州、厦门、南昌、武汉、
杭州、苏州、温州、郑州、长春、沈阳、贵阳、柳州、
哈尔滨、九江等城市设立办事处
© 2017-2021 Jsheh.com 版权所有 粤ICP备17079093号
展开
回到顶部