项目地址:成都·万科公园五号
设计机构:尚舍家室内设计
设计团队:刘芊妤
空间摄影:李恒
项目面积:270㎡
完工时间:2022年7月
与优雅共舞
于浓浓温情之中
凝聚生活的从容和美好
业主是一对幸福恩爱的夫妻,房子平日主要由二人居住,儿子和父母偶尔会回来小住。居住过程中,业主将整个家收拾得井井有条,纤尘不染。
业主理想中的家是大气温馨的,并于简约之中流露出生活的仪式感。对生活的热爱以及个性化的审美偏好,都为设计师带来了不一样的设计灵感。最终设计师凭借细致合理的优化改造,实现了业主关于理想住宅的心愿。
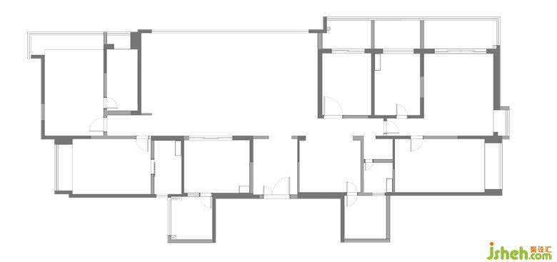
▲ 改造前平面图
▲ 改造后平面图
客厅
Living room
雅奢意境,质感为上
整个空间视野开阔,明亮通透。客餐厅贯通的动线,使得日常休闲活动极为便捷。家装设计空间以黄、白、蓝为主色调,营造出轻奢典雅的气质。
家装设计采用悬浮式电视柜设计,既满足一定的收纳功能,又彰显出电视柜轻盈的体态造型。此外,下方的悬空处,也更方便清洁打扫。


精致考究的弧形沙发有着简约流畅的线条,坐感舒适的同时,增加空间的温润之感。家装设计棕黄色沙发椅,通过皮质与金属的结合打造出优雅的质感。造型别致的吊灯,以白色金色组合来凸显典雅韵味。
树立在客厅的立体几何雕塑给空间平添些许艺术气息,与整个室内环境形成一种和谐共生之美。蓝色晕染的抱枕与沙发椅、地毯的色彩相呼应,为整个空间注入一些亮色,散发出精雅独特的浪漫意趣。



入户玄关处巧妙运用灯光,通过墙壁氛围灯晕染的光线来营造空间的明暗层次,家装设计打造一种温馨的情调。柜体灯光除了突显柜子内的物品以外,呈现出独特的光影效果,在视觉上扩展了柜子的空间感。


