项目地址:成都 · 华润幸福里
设计机构:尚舍家室内设计
空间摄影:李恒
项目面积:240㎡
完工时间:2022年6月
时光如画
笔触柔软似水
晕染在空间的每一处角落
业主是温馨有爱的一家三口。整个顶跃之家的呈现宛若业主春风般的温润性格娓娓道来。家装设计在巧妙的混搭之下,闪现着优雅灵动的艺术之光。空间的打造不拘泥于风格的限定,既拥有现代美式的自然简洁,又融入了小复古的细腻典雅,同时还具备了新中式的传统意境。
业主希望空间典雅浪漫,充满活力,散发出自然而然的隽永气度。设计师对空间进行了合理的优化与改造,使其动线更加便利有序,同时将收纳功能利用到极致,以业主的个性审美为基础,为整个家注入了浓郁的艺术气息。
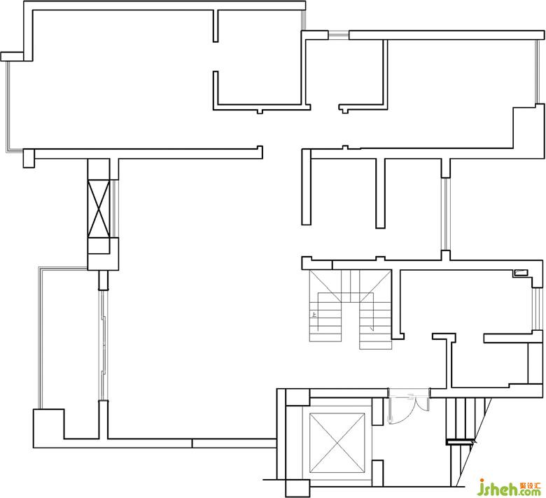
▲ 改造前平面1L
▲ 改造后平面1L
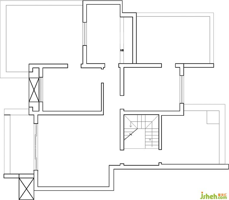
▲ 改造前平面2L
▲ 改造后平面2L
客厅
Living room
明媚典雅,温润有致
目之所及,皆是空间中柔静温雅的白色,家装设计以不同材质呈现出丰富的层次与质感,清新自然。
宽大舒适的白色沙发,搭配棕色柔软的纹饰靠枕和蓬松的羊毛地毯,和谐美观。边几上的粉色花束带来些许的浪漫情调。

电视背景墙简洁精巧,下方的壁炉作为空间中的视觉焦点,给空间增添融融暖意。
当午后阳光肆意洒落室内,白色的纱帘随微风轻舞,躺在沙发椅上,手捧一杯热茶或者咖啡,家装设计整个空间都弥漫着清雅的气息,身心舒展而放松,安心享受美妙的惬意时光。

空间布局开阔明朗,贯通一体的客餐厅,家装设计共同沐浴着源源不断的自然光,室内澄明洁净,呈现出纤尘不染的诗意气氛。
门厅柜体的花束墙纸别具古雅自然氛围,与空间的典雅格调相得益彰。立在一旁的抽象几何雕塑为空间更增几笔艺术魅力。

