项目信息
项目地址:成都北斗七星城装修设计
设计机构:尚舍家室内设计
空间摄影:Marco
项目面积:85㎡
完工时间:2022年12月
业主作为当代独立女性,拥有并践行着独属自己的生活方式,她有着不同的双面个性,既热爱机车与健身,又喜欢养猫以及一切美好可爱之物,可以是很燃的速度与激情,也可以是岁月静好的安心陪伴,是集酷飒与天真于一身的名副其实的“机车美少女”。
伍尔夫曾说:不必匆忙,不必火花四溅,不必成为别人,只需做自己。业主希望自己在家中能够处于完全放松的状态,轻松做自己。成都北斗七星城装修设计空间用色、造型都可以不拘泥于传统,在合乎个人审美的基础上,兼具理性与温情,既镌刻有个人生活的烙印,又能很好地安放属于自己的那颗少女心。
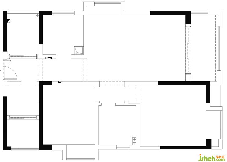
项目平面图
▲ 改造前平面图
▲ 改造后平面图
LIVINGROOM
客厅
整个空间用色、造型不拘一格。整体以低饱和度橙色作为主题色调,以相对明丽的色彩,中和了灰色与蓝色的沉闷之感,营造出理性与温情并存的家。空间多采用弧形元素,勾勒出多变的层次与一丝不苟的仪式感。
成都北斗七星城装修设计师将厨房与餐厅之间的墙体予以拆除,使客厅、餐厅、厨房融为一体,形成纵向贯通的视野开阔之景。抽象艺术画充满奔放想象力的线条,艺蕴十足。



甫一入户,首先映入眼帘的便是贯通整个空间的纵深长廊,弧形门带来了更多的仪式感,仿佛在庄重地迎接每一位来客。
视野随空间向前延展,成都北斗七星城装修设计师将厨房原有的入口部分进行了半封闭处理,半开放式的厨房凭借操作台与走廊相连,合理利用每一寸空间的同时,增强了备餐时家人间的互动与交流。家装设计另一侧的墙柱利用遮挡关系,起了过渡与分界的作用,为空间保留了些许的神秘感。

入户后的鞋帽间作为一个休整中转站,收纳充裕,简洁有序,便于正式进入前的各项准备工作。
收纳柜上整齐地摆放着业主的机车头盔,酷炫与萌感极具张力的巧妙结合,彰显着业主本人独特的性情爱好。