项目信息
项目地址:中南融创 · 玖华台家装设计
设计机构:尚舍家室内设计
设计团队:向梅 张婷 曹沛
空间摄影:Lyang
项目面积:150㎡
完工时间:2022年12月
时光像水洗过一样
在自己的节奏里
静静流淌,漾起圈圈涟漪
业主是一对年轻夫妇,二人向往简单纯粹、舒适温雅的生活,理想中的家,家装设计没有繁琐的缀饰,没有华而不实的造型,一切都干净利落,大气简约之余,能够成为现代人的精神栖居之所。
设计师将空间结构进行了拓展,拉大空间格局,使得行走动线更加顺畅合理,获得优越的采光通风条件,打造出舒适洗炼的空间氛围。同时,挑选精妙恰切的软饰,烘托出整个空间别具艺韵的唯美温馨格调。
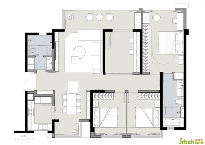
项目平面图
▲ 改造前平面图
▲ 改造后平面图
客厅
Living room
简雅通透,倚光而居
家装设计师将阳台处打通纳入到客厅之中,扩展了空间格局,使空间视野更加通透、纵深感十足。家装设计与此同时,将自然光引入到室内,使空间拥有了绝佳的采光。在后疫情时代,通风条件的好坏也直接影响着家中生活的健康舒适程度,阳台打开之后,通风条件也更加有优势,室内外空气相通,人可以更加自在地呼吸新鲜空气,有益于整个居家生活的健康。
内敛理性的灰色调,和谐而不事张扬,叙说空间优雅的底色,仿若娓娓道来。


空间线条凝练爽利,块面简洁有序,隐藏式收纳柜体的设置,家装设计将空间的功能性与审美性结合得恰到好处。
阳光透过阳台的百叶窗照射到室内,一条条的光线整齐地汇聚在地上,温暖柔雅,让人的心也变得沉静下来,开始静静享受温吞慵懒的悠长午后。


空间简约而不简单,巧妙的留白,给了空间更多的诗意与遐想空间。家装设计让置身空间中的居住者能够更加自如地获得一种真正意义上的“呼吸感”。
经典的黑白色调搭配得相得益彰,仿佛在用最简练的画笔,勾勒出空间的精魂所在。