项目信息
项目类别:全案服务
项目地址:朗诗·南门绿郡
设计机构:尚舍生活设计
设计团队:阴倩纪婧婷杨欢
空间摄影:成都空与间摄影
项目面积:175㎡
完工时间:2022年5月
饭疏食
饮水
曲肱而枕之
乐亦在其中矣
业主是一对年轻的新婚夫妻,他们憧憬着在新家里能开启美好生活的新篇章,希望空间凸显出艺术性和设计感,同时容纳两人的温情互动。家装设计师重新疏导空间关系,将利用率较低的阳台空间纳入室内,优化生活动线;把直线的硬朗与曲线的柔美相融合,增强空间互动连通性,打造出简约且富有艺术美感的气质住宅,让小夫妻可以自由互动,共同体验生活的丰富与趣味。
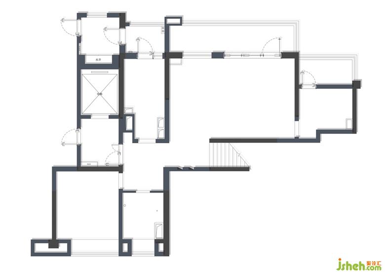
1楼改后平面户型图
2楼改后平面户型图
▲ 一楼改造后平面
▲ 二楼改造后平面
业主需求
1、希望空间凸显出艺术性和设计感;
2、希望家里有绿植丰富的小花园;
3、希望有一个榻榻米室,可以喝茶、冥想和练习瑜伽;
4、希望两人有更多的互动空间;
5、希望家的整体风格是温馨而充满质感的。
设计师思路
1、家装设计将进门玄关处有直角墙改为弧形墙,为空间赋予艺术性与柔和感;
2、封闭生活阳台,扩大和简化室内空间,优化生活动线,尤其是客餐厅空间,以免空间浪费;
3、在餐厅增加岛台,做成LDK客餐厨一体化设计,既可增加收纳,同时满足更多样化的料理类型,还能增加小两口的互动空间;
4、楼梯处增加灯带,优化户型单面采光,楼梯处昏暗的特点;
5、家装设计将主卧外的阳台隔开,一部分纳入主卧,另一部分设计成小花园,优化主卧室外景观;6、主卧卫生间重新设计,入口改为主卧套房中,保护业主的隐私;
7、把一楼电视墙后的次卧改为榻榻米室,既可在其中喝茶,也可满足女业主想要冥想和瑜伽的需求;
8、色彩上,设计师针对业主的色彩分析,选取白色为主色调提亮空间,给人温馨的感觉,以灰、深棕和黑色点缀空间,让空间在简约中不乏质感。
01
SMOOTH / 顺畅
用线条勾勒出生活的韵律

弧型墙面流畅柔雅,让入户后的空间俊逸灵动,家装设计视觉沿着曲线引导延伸到客厅,玄关与客厅之间拥有顺畅的连续性,家的温度也得以串联。玄关处的艺术挂画,是业主收藏的一幅日本中古画,画中简约安静的房屋,寄托着业主对于家的情愫。

