[International Pavilion] all are pure imported high order products, covering more than 50 international luxury brands around the world. Meet the high demand of global luxury eyewear consumers. Expand the field of vision and gain a clearer insight.

▲睛彩之眼
WONDERFUL WINDOWS EYE
极致设计意味的不仅是概念上的张弛华丽,还必须兼顾落地技法上的冷静斟酌,与经营管理的行为系统。展厅设计从资本前测准备,中期概念生成,到工艺系统的定型,用料斟酌,造价风控,但凡出色之作,无论大小,必然闭环井致。
Advanced design not only means the cleverness of concept, but also means the calm thinking about the implementation of technology and operation management behavior system. All uncompleted projects, from the preparation of early capital investment, the generation of medium-term concept, to the final determination of process system, material selection and cost risk control, regardless of scale, will be closed-loop.
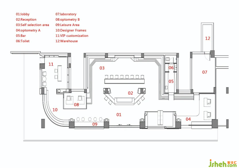
技术图纸 / Technical drawings
更多展厅设计请关注聚设汇装修平台: