欢迎光临聚设汇,装修找设计就上聚设汇!
   咨询电话:15602987227
登录    注册
聚设汇
首页 > 家装 > 92㎡猫奴家的复式装修设计,可开可关的布局告别乱哄哄

92㎡猫奴家的复式装修设计,可开可关的布局告别乱哄哄

坐标丨Position:北京京铁家园复式装修设计

设计团队丨Design Team:久栖设计

面积丨Area:120㎡

造价丨Cost:37万

风格丨Style:简约

——

舒适和谐的双层住宅

纯粹的原白

复式装修设计展现精致高端的空间主义

//

即开即关的格局

让视觉得到了更多连续性

本案位于北京丰台,两人+两猫是这套房子的居住者。

因为原始的房子复式装修设计风格比较老旧,户型布局也存在许多问题,加上日常高强度工作习惯,使他们对新家的改造,有着简洁舒适的期望。

结合屋主的喜好和需求,重新梳理了各个功能分区,复式装修设计通过格局的改造和材质的组合,创造一个既现代又慵的随性生活状态,既独立又共居的空间形态。

对于整体风格,试图打造现代简洁而温暖,舒适又灵动的家居空间。与喵星人共居的美好生活,就此室内设计展开。

——

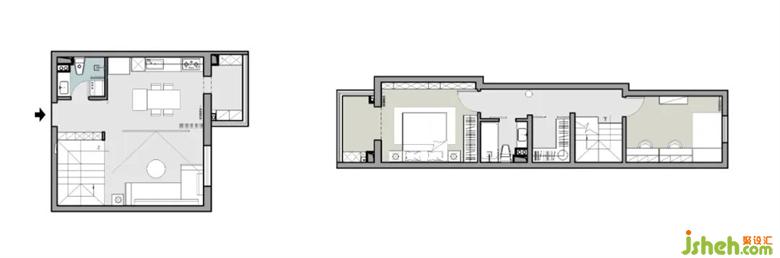
原始户型

一层原始户型每个分区都比较明确,但是每个空间都比较小,进门口也缺少收纳空间。复式装修设计空间之间没有互动与联系,这让餐厅位置尴尬。所以一层应该加强空间的连接性,每个区域应该有相应舒适的尺寸。二层原始室内设计空间结构比较规整,但需要合理安排出,相应的卧室区,游戏室,衣帽间的卫浴区。

——

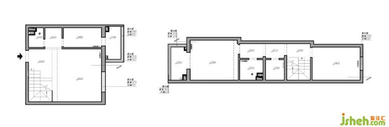
平面方案

在复式的结构室内设计里,第一步就是考虑楼梯的位置和方向,涉及到所有空间的比例和动线。在门厅处更改了楼梯的方向,从而增加出了一排的储物收纳空间。扩大了卫生间,使内部活动尺寸更为舒适合理。客餐厅,厨房形成一体,增加互动性。无论从活动还是视觉上,复式装修设计都放大了空间,更灵活。整个二层空间更加偏重于生活,二层南向小空间作为了屋主的游戏室,承载了他们的爱好与习惯。把大卧室归属在了主卧,增设了衣帽间。

——

客厅

在客厅与楼梯之间放置了猫爬架,喵星人可以从猫爬架,跳跃到沙发背景后,再跳到家具上。复式装修设计也可以直接在楼梯上的格栅处活动,让它们的游戏角,既独立又融合,使整个客厅舒室内设计适简洁。

打通客厅与餐厅的隔墙,复式装修设计让整个空间融为一体,营造的氛围更为融洽。空间双倍放大,使视距更开阔,层次分明。

客厅去电视化,用投影满足观影,还能省下电视墙的空间。

投影升起来,客餐厅和厨房融为一体,方便交流与会室内设计客。投影落下,又可以专心享受大荧幕的体验。复式装修设计在切换之间,同时转换不同的生活状态。

——

厨房

复式装修设计将厨房墙体打掉,让客餐厅和厨房融为一体。为了保证隔绝油烟,除了必备超大吸力的油烟机外,还做了通顶的超白长虹玻璃室内设计联动门,更能完全的隔绝油烟。4+2的联动门,单扇门尺寸是100*205cm,可以完全推到一起四扇变一扇,增加通透性还不占地,满足不同的使用状态。

开放式的厨房,让原本面宽较小的橱柜,同时拥有了电器高柜和岛台,复式装修设计使用方便还让整个餐厨空间动线更加灵活。阳光透过窗户洒在每个角落,温暖光亮的气息充满整个空间。

北京久栖室内设计有限责任公司

设计收费:100~400 元/平             

擅长类型: 家居设计

在线咨询

扫描二维码关注我们的微信

深圳市聚设汇文化传媒有限公司
主编热线:15602987227
总部:深圳市罗湖区梨园路128号宝能汽车大楼416单元
佛山、东莞、成都、重庆、福州、厦门、南昌、武汉、
杭州、苏州、温州、郑州、长春、沈阳、贵阳、柳州、
哈尔滨、九江等城市设立办事处
© 2017-2021 Jsheh.com 版权所有 粤ICP备17079093号
展开
回到顶部