地址:北京天通苑北二区
面积:140平米
造价:40万
风格:现代简约
简介前言:
此案例的坐标位于北京北边亚洲最大的小区天通苑小区。这是一套110㎡的三室两厅两卫。在装修前我们的屋主,就一直住在这个地方。第一次测量时,屋主和我们说,希望能有足够的储物空间,以及和猫咪玩耍的地方。
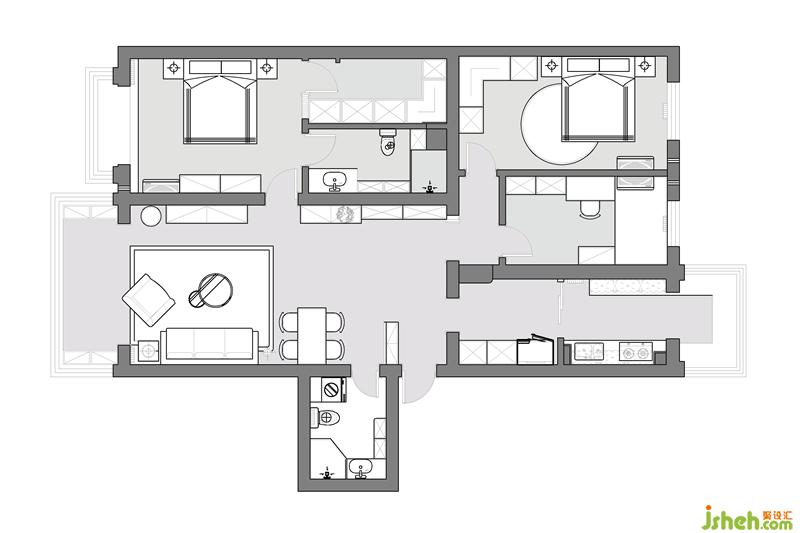
原始户型图
原始户型墙体基本上以承重墙体为主。户型缺点原有餐区位子在进入厨房的主要通道上影响通道的使用。客卧书房外的通道与厨房之间的洞口虽然形成了环形路线但形成了空间的浪费。
方案设计图
整体格局没有大的改动,因为原有格局符合业主的使用习惯所以只对原有格局进行了一些细微的改动。把原有餐桌区域做为了厨房的扩展空间以及门厅的储藏空间。餐厅区域移动到了和客厅沙发旁边。
从客厅看向餐厅,进门左手边是换鞋凳和收纳柜,主要方便收取快递等物件临时存放,在收纳柜上方是十字格配上挂钩回家后的包包以及钥匙可以挂上在这里。
客厅区域灰色地砖饰面墙面颜色立邦漆(太空漫步),窗帘布艺为抹茶绿,客厅沙发芝华士头等舱材质为(科技布)防止猫咪抓挠,整体没有太多的装饰。
沙发旁边的长条形壁灯,在夜晚观看电视不需要开主灯照明时,可以打开做为辅助照明使用,以及氛围灯使用。
玄关对面做了换季的鞋柜以及猫咪的活动区域,在卧室通道以及厨房入口之间的墙体贴了黑板墙贴。
木色的餐桌餐椅给予自然的感觉。

餐桌往左走分别是次卫卫生间门玄关区域换鞋凳。黑色金属十字格,灰色换鞋凳,木色餐桌,以及带有复古元素的灯具构成了餐厅的一角。
餐桌灯,带有一些复古元素。
厨房的双一字型橱柜,洗切配炒集中在同一侧,且台面高度也是根据屋主的身高定制的,更能满足个人的使用习惯。
玄关处储物柜给业主家打大猫预留活动通道,保留的白色柜体也充当了大猫的第一步台阶。在厨房和去卧室的洞口区域做了黑板墙做为记事以及绘画使用。