地址:北京天鹅湾
面积:140平米
造价:42万
风格:日式
简介前言:
Trista平时喜欢收藏各种东西,孩子随着年龄的增长杂物也比较多,新房想要日式的简约设计同时需要大量储物功能,所以收纳力max的日式小巢诞生了。
全屋收纳体系,经过与结构之间的整合,足以满足屋主三口人,近十年的使用情况。考量长久的居住使用体验,利用活动空间组建动线,实现无分隔式的『一室』空间。
由于对自然属性的热爱,Trista一家的用色基本以木与白色为主。最简单的事物,即是生活也是理想。
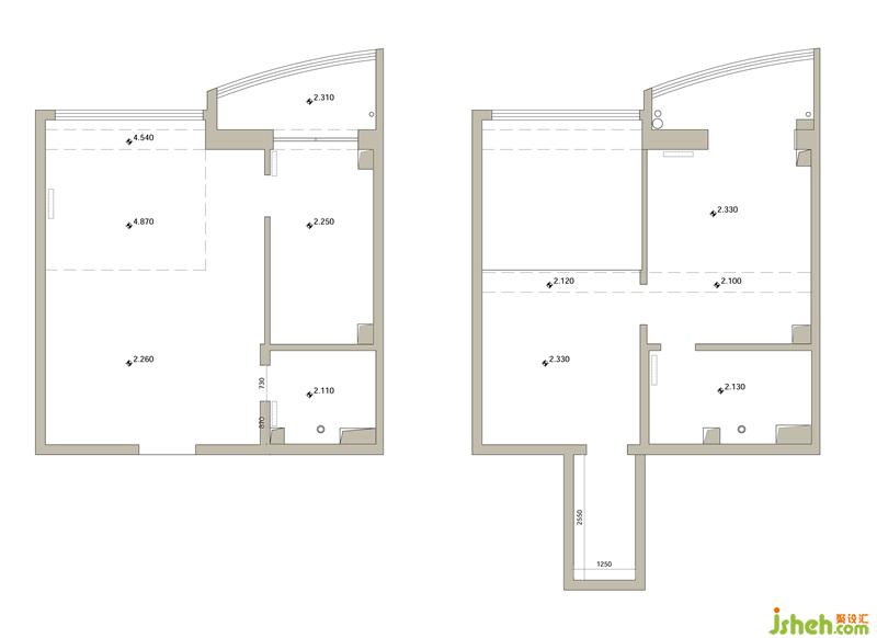
原始户型图
平面方案图

客厅与厨房之间的隔断墙我们将它全部拆掉,厨房变为开放式后空间的动线变得特别顺畅,同时借助客厅的采光使空间在视觉上看起来更加宽敞。
二层挑空部分在客厅区域,在楼板靠客厅的一侧,我们安装了与一层储物柜同色的木饰面板,在视觉中一层延伸到二层,使其衔接的更加自然。
沙发表面看似是皮质,实则为布艺,美观且便于打理。白色墙面搭配着爵士白电视背景墙,不乏味,不混搭。起分隔作用的窗帘选用了轻薄的纱帘,使得光线更好的进入室内,又能保证阳光不过分刺眼。
平淡质朴的日式味道,整个空间配色为温馨的木色家具,靠墙一侧的整高柜大大增加了屋内的储物,解决了客厅的收纳问题。不同规格的开放格使东西摆放避免杂乱无章。
将冰箱放置在楼梯下方空缺处,合理的运用空间,能为整屋的布局节省很多面积。
玄关与厨房区域照明均选用嵌入式筒灯,减少灯具的存在感,使其看起来更加整体。厨房靠近灶台墙面铺贴瓷砖,烹饪产生的污渍便于打理。
入户门的一侧做了组L型的收纳柜,靠近门的柜体具备换鞋挂衣功能,使进出门的衣物鞋物能合理摆放。入户门为双色门,朝向室内的一侧选择了与整体更搭的米白色。
挑空俯瞰客厅的全景,木色与白色为主,营造出返璞归真的生活质感,二层朝向客厅的墙面安装了经过开槽加工的木饰面板,造型不单一,使空间变得灵动。
户型净高4.9米,充分利用挑高空间的视觉效果,配合整扇的采光窗,使空间视野宽敞明亮。