地址:保利大都会
Address: BaoLi.
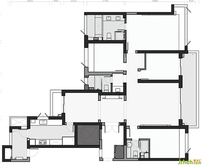
面积:192㎡
Area: 192㎡.
风格:现代
Style: Modern style.
设计公司:武汉支点设计
设计师:杨坤
Designer: Yang Kun.
软装搭配:艺境 · 陈设软装
Soft outfit matching: artistic environment furnishings soft outfit.
美好生活在哪里?我想带你寻找答案,一起去倾听,发现生活无所不在的美好,把感动我的阳光分享给热爱生活的你。
选自综艺《你好,生活,对生活说你好!》
设计师基于对于业主家庭形态、职业形态和居住习惯的把握,在有效利用原有精装修工程和有效控制成本的基础上进行空间功能合理化改造和软装风格的艺术化升级,呈现出整体上的侘寂感与局部性的学院范儿相融合的美学风格。
肌理感极强的深色木纹与非常具有特色的客餐厅布局形式,是大多数人对这个家的初印象。
柜体悬空+灯光,能在视觉上削弱柜子的体量感,达到轻盈、悬浮的感受。枯山水微景观,极简入魂,质朴入心,象征性表达出生活干净、纯粹的自然之态。
“开放的用餐空间”
结构连贯的岛台+餐桌
体块感
品酒、人少时用餐
结构连贯的岛台+餐桌使这个空间的体块感极强,因此,原有的地砖成为空间背景,消弭在这个家的空间气质中。
秩序感极强的酒柜被绿植柔化,搭配业主日常使用的杯具,生活氛围马上显现。
以书吧的形式打造会客厅,桌椅代替传统沙发,符合业主藏书、聚会、开会、办公的需求。
在现代感的空间布局中,绿色的座椅与纹理明显的木纹柜子,在人的脑海形成色彩与图形的想象,书籍的纸张是树木加工后的形态,加上绿植点缀,树的一生呈现于家宅之中,空间里的意蕴与情感不言而喻。

一人或多人聚会,这个会客厅都可满足,岛台里的恒温酒柜,可以让此处随时成为业主与好友开Home Party的地方。