地址/ 保利大都会
面积/ 192㎡
风格/ 复古轻奢
主案设计/ 杨坤
软装搭配/ 艺境·陈设软装
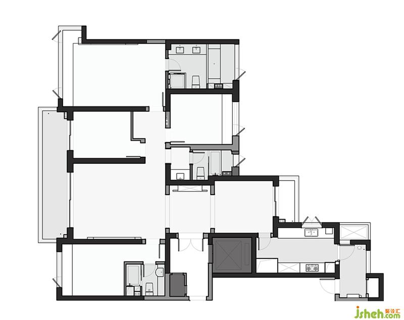
原始结构
初见这个房子
动静分区合理,基本设备齐全
满足三代人生活需求
设计师做了少量的拆除扩大使用面积
通过家具形体优化空间视觉尺度感
以色彩搭配、造型重复运用为核心
优化居住体验
推开门,在一片纯白里,看见一抹红色,恍然间给我提了个神。
家居设计以强烈的颜色对比表达空间张力,告诉我们回家不仅仅是松懈更是随心活跃。
晨出晚归,玄关迎接与目送我们归家与外出,得兼具美貌与功能于一身,平板柜门背后有强大的收纳系统,保持视觉干净的同时满足一家五口进出门的收纳需求。
向左转,取结构之美,弧形门洞层层递进,把人的视线引入客厅。
客厅是全家人的活动空间,我们把阳台纳入室内,扩大活动面积。孩子可以在客厅随意玩他的大件玩具。
我喜欢透过纱帘照进的阳光,打在身上微微的暖意也不刺眼,虽然家里颜色很丰富,但是看起来很融合,不炸眼、而是亮眼。
在整个灰白空间里明黄色沙发活力非凡,隐喻一家五口欢聚一堂的热闹喧嚣,无数个晚饭后睡觉前的时光在这度过。

右边的开放格以金属作为背板,增加空间层次感,把我们心爱的小物件都摆出来吧。
通顶格栅把进入老人房的门隐藏在墙面之中,整个墙面干净整洁,凸显拱门造型。
拱门造型有复古、童趣的感受,重复运用是为了形成家的记忆点,从形式上打造有个性标签的家的场域,如同这个家里的色彩一样独特。