地址| 东湖楚天府
面积| 170㎡
风格| 美式现代
设计公司:武汉支点环境空间设计
主案设计| 徐彪
软装搭配| 艺境·陈设软装
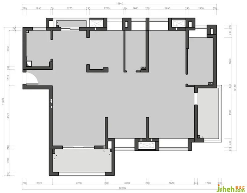
原始结构
赋予建筑情感与温度,便是设计所能体现的精妙之处。
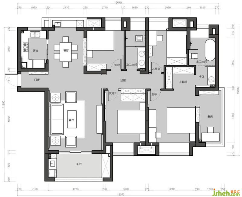
每个家的格调与品位,是设计永恒的主题。在此次设计中,设计师提取美式传统造型手法,结合本户型的空间尺度,奠定家里美式复古情怀,搭配局部特色饰面、摆件、灯具营造现代感,打造一个情怀传统、生活现代的温情家居生活。

推门回家,墙上的挂画是家的写照,红色樱桃花束永远鲜活、灵动,迎接主人的归来。
原始户型玄关空间稍显逼仄,设计师安排工人现场制做非标鞋柜,为了在保有入户储藏功能的同时最小占用空间。
男生有对发型的执着,女生有对服饰搭配的执着,出门前的最后一刻两人永远都在镜子前确认自己今天的造型。
镜子的反射原理既能扩张空间尺度,还能反射光线,解决原始户型玄关采光弱的问题。黄铜边框与换鞋凳材质相互呼应,一进门就奠定了情怀复古,轻奢生活质感的居住环境。
生活总要有些仪式感才惊喜、浪漫,永远想去探索,每天便多了许多憧憬。
提取欧式布局特点,完全对称的墙面造型与边几、摆件,显得空间大气、稳重,仪式感十足,也把暖气设备完美隐藏在沙发后面。莫兰迪色系搭配给家增添了温柔、亲和之感,墙上组合挂画随性、浪漫,记录生活美好。
客厅内,设计师摒弃了传统欧式的厚重感,取而代之的是现代轻奢感的软装。曲线流动感的电视柜,金属框架通透感的茶几,尊贵的格调,轻快的空间感受。
猫狗在嬉闹,画家的想法,艺术家的概念,还有好多趣事想和你一起去体验,好多饰品、摆件我们要一起带回家中。