地址/ 龙苑澜岸
面积/ 约360㎡
风格/ 现代
设计公司:支点环境空间设计
主案设计/ 李静
软装搭配/ 艺境·陈设软装
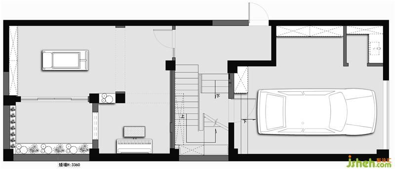
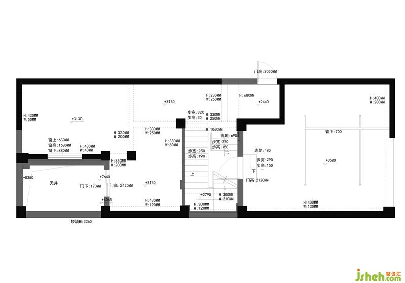
-1原始平面图
3F原始平面图
4F原始平面图
5F原始平面图
改造后:
-1F:家庭娱乐室:健身、钢琴
3F:家的社交、聚会场所
4F:休息场所
5F:家庭放松空间
-1F平面图
3F平面图
4F平面图
4F平面图
整个设计到施工做了两年、中间跨越疫情,疫情给了许多人对家不同的思考。在最初做设计时,设计概念就是大隐隐于世,疫情之后设计师与业主的这种情感愈发强烈,旨在打造一个生态感满满的家,设计师利用植物配饰、大面积的木饰面、少量天然石材营造旷野之感。
开车归家,我们在车库补充玄关功能,车库整面储物柜增设消毒灯,用来在出门、回家换衣服时,放置净衣物、次净衣物。

对于一个跨越5层楼的家庭来说,智能化太重要、也太方便了。整面植物墙与木饰面搭配,生态、户外感马上就来了。