欢迎光临聚设汇,装修找设计就上聚设汇!
   咨询电话:15602987227
登录    注册
聚设汇
首页 > 家装 > 开门见山-木栅张宅

开门见山-木栅张宅

室内设计师

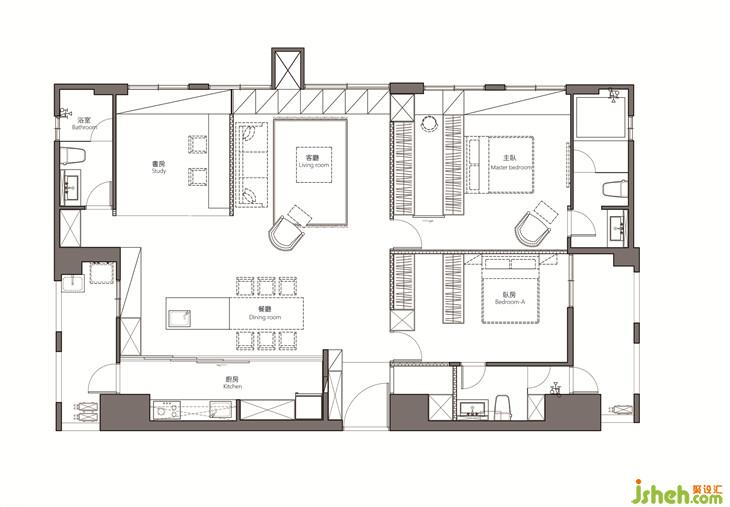
从书房往厨房看,餐厅用中岛屿实木活动餐桌的结合,变成一个可以宽广的用餐空间

主浴牆面也用實木皮隱藏起來

室内设计师

房間入口上方的梁利用燈帶的手法弱化壓迫感

延伸+穿透

一直是我們蟲點子設計的主要設計手法之一

虫点子设计

设计收费:1200-1500 元/平             

擅长类型: 家居,豪宅,别墅

在线咨询

我的作品更多>>

扫描二维码关注我们的微信

深圳市聚设汇文化传媒有限公司
主编热线:15602987227
总部:深圳市罗湖区梨园路128号宝能汽车大楼416单元
佛山、东莞、成都、重庆、福州、厦门、南昌、武汉、
杭州、苏州、温州、郑州、长春、沈阳、贵阳、柳州、
哈尔滨、九江等城市设立办事处
© 2017-2021 Jsheh.com 版权所有 粤ICP备17079093号
展开
回到顶部