项目地点:台北
项目面积:100坪
主创设计:郑明辉
这是一间位于杨梅的三层楼透天住宅,室内面积约75坪,还有一个近25坪的超级大庭院;屋主为一对夫妻与一隻狗狗跟两隻鸟,他们原来住宅台北市中心,退休后就想找个安静的地方休息享福,所以就决定卖掉台北房间搬到这裡。原始房屋是一个标准建商盖出来的传统欧式透天,还有我最讨厌的丑丑木头扶手,其他部分除了格局很狭长导致中间光线较差外,其他都不算太差,尤其是挑高蛮高的是最大的优点。
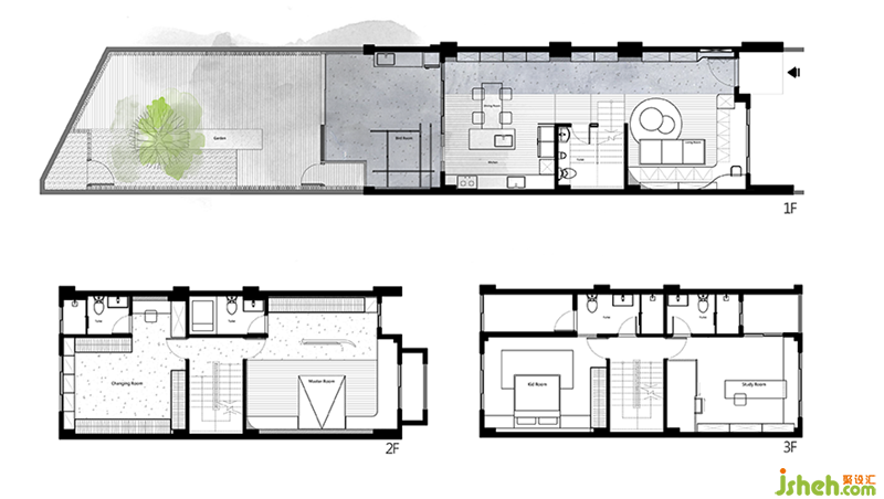
- 平面配置 -
一楼为主要活动空间,我们在庭院旁边隔了一间鸟屋,庭院可以让狗狗在这裡跑跑跳跳晒太阳;二楼是主卧室跟超大更衣室;三楼为书房及夹层阁楼还有客房。三楼因为为斜屋顶,所以我们就在储藏室上面设计了一个小阁楼,平常可以在这裡放空或看看书的好角落台湾装修设计。


- 二楼 -
因为三楼有预留客房,所以二楼原来房间整个就可以变成超大更衣室,不管大衣或是折的衣服都有足够的空间使用;我们设计一个黑色色块空间,变成屋主的化妆空间;更衣室也保留原来窗景,看出去就是舒服的绿树。

主卧室因为原有深度比较深,所以我们把电视牆往前拉,后方可以坐个简易的衣橱空间,地板部分用木纹砖及义大利矿物涂料做界定;天花板延续一楼的弧形穴居概念,床头板也呼应天花板造型,用一个弧形木皮牆面修饰;窗边则设计了一个加宽卧榻与床头柜整合台湾装修设计。



